13304 Porter Creek Road
Charlotte, NC
$325,000
Details & Amenities
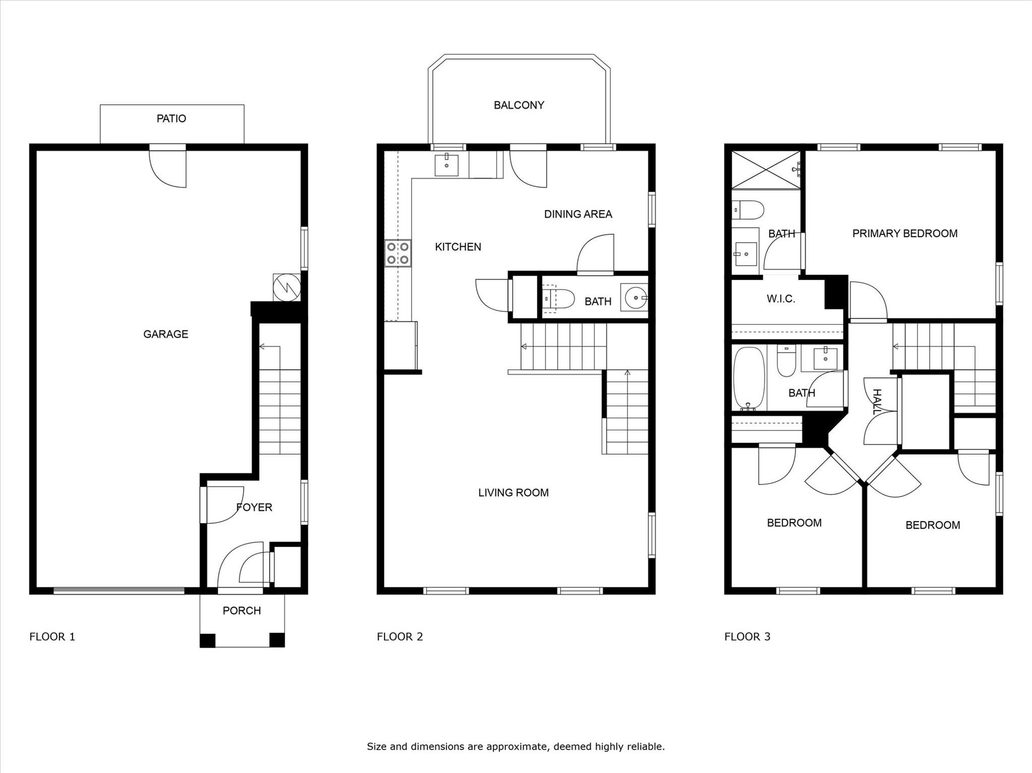
Ask about the multiple down payment programs available for this home! Welcome home to this beautifully maintained 3-story townhome just minutes from UNC Charlotte, Atrium Health University, Charlotte Motor Speedway, and easy access to I-485 and I-85. This modern 3-bedroom, 2.5-bath home offers the perfect blend of comfort and convenience. Only 2 years old, it features fresh paint, updated flooring, new carpet, and an oversized one-car garage with ample storage. The open-concept main living area is ideal for entertaining or relaxing. Enjoy access to the community pool and the benefits of low-maintenance living in a prime University City location.
Property Type:
Residential
Map
This property is a listing of The Sears Group, LLC.Listings courtesy of Canopy MLS as distributed by MLS GRID.
© 2025 Canopy MLS. All rights reserved.
Claims of Copyright Infringement & Related Issues (17 USC § 512 et seq.)
