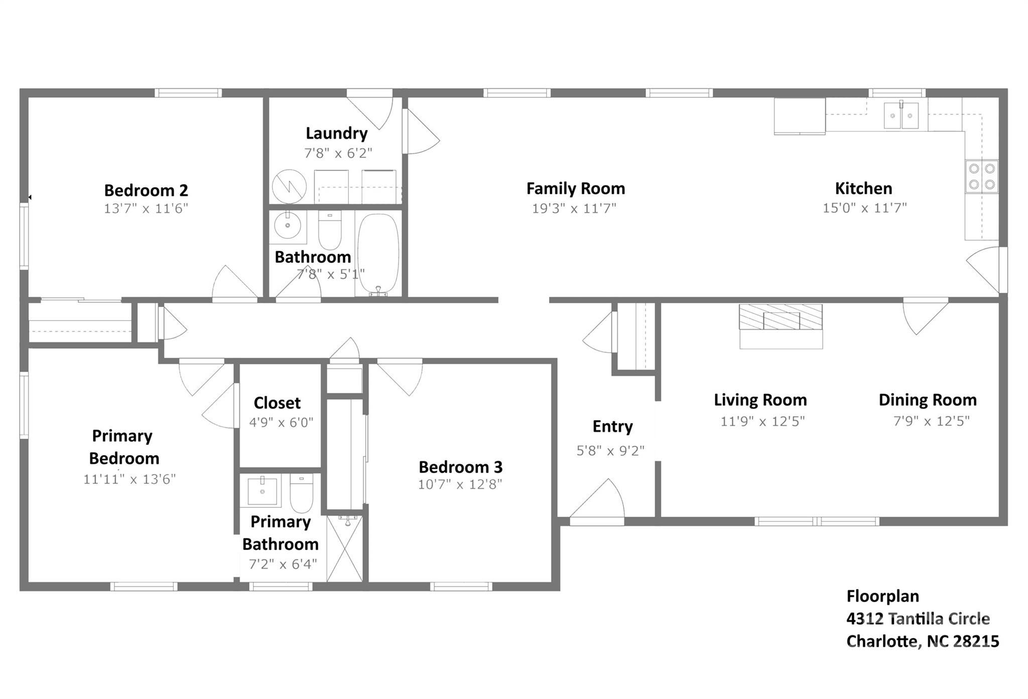
4312 Tantilla Circle
Charlotte, NC
$595,000
Details & Amenities
Beautiful brick ranch on 1/2 acre flat parcel is high value land investment zoned for multifamily which allows for future development of a 12-unit, 3-story apartment or condo complex. Prime location is conveniently located to bus line & UNC Charlotte and ideal for development as student apartments or professional condos. Uptown Charlotte, the city’s bustling core, is only 6.5 miles away, offering cultural and employment hubs. Outdoor enthusiasts will love the nearby Greenway for biking and walking, plus recreational spots like Reedy Creek Park. Great local shops, restaurants, bars and services perfectly complement the Urban Charlotte lifestyle. ¾ mi to light rail, 3 mi to UNCC & 12 mi to CLT international airport. With excellent access to I-85 and public transit, this parcel is perfectly positioned for a high-demand multifamily project in one of the Southeast’s hottest markets.
Property Type:
Residential
Map
This property is a listing of Fisher Herman Realty LLC.Listings courtesy of Canopy MLS as distributed by MLS GRID.
© 2025 Canopy MLS. All rights reserved.
Claims of Copyright Infringement & Related Issues (17 USC § 512 et seq.)
