345 Beaten Path Road
Mooresville, NC
$1,128,500
Details & Amenities
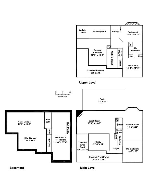
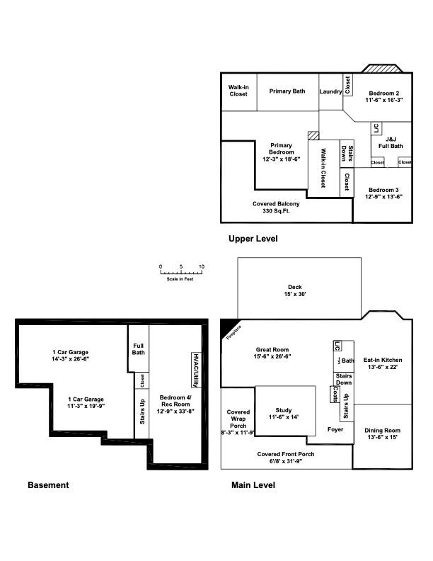
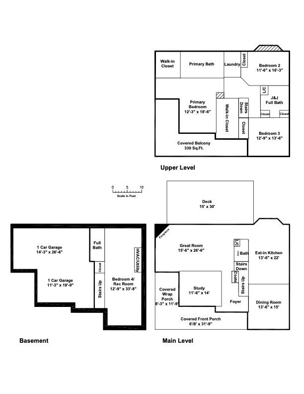
Ready to live the lake life? Welcome to 345 Beaten Path Road in the highly sought after Shavender's Bluff community. Shavender's Bluff is a hidden gem offering residents a community beach w/picnic areas, boat ramp, boat storage, a pool & walking trails. This home has a DEEDED BOAT SLIP! Lovingly renovated by an interior designer. Double covered wrap around porches w/new cable wire rail system, back deck w/awnings, fenced yard, and fire pit area. If you love to cook this new kitchen will not disappoint. Two sinks, custom cabinetry with pull outs, SS appliances & granite counters. The main floor has generous living spaces including an office with French doors. Upstairs the primary suite has been renovated to include 2 walk in closets with built ins. Two additional bedrooms with a new jack and Jill bathroom and a new laundry room with a sink complete the second floor. Basement has a full bath and recreational area. Schedule your appointment today!
Water Body:
Lake Norman
Property Type:
Residential
Map
This property is a listing of Century 21 Lawrie Lawrence.Listings courtesy of Canopy MLS as distributed by MLS GRID.
© 2025 Canopy MLS. All rights reserved.
Claims of Copyright Infringement & Related Issues (17 USC § 512 et seq.)









































