657 Chase Court
Fort Mill, SC
$879,000
Details & Amenities
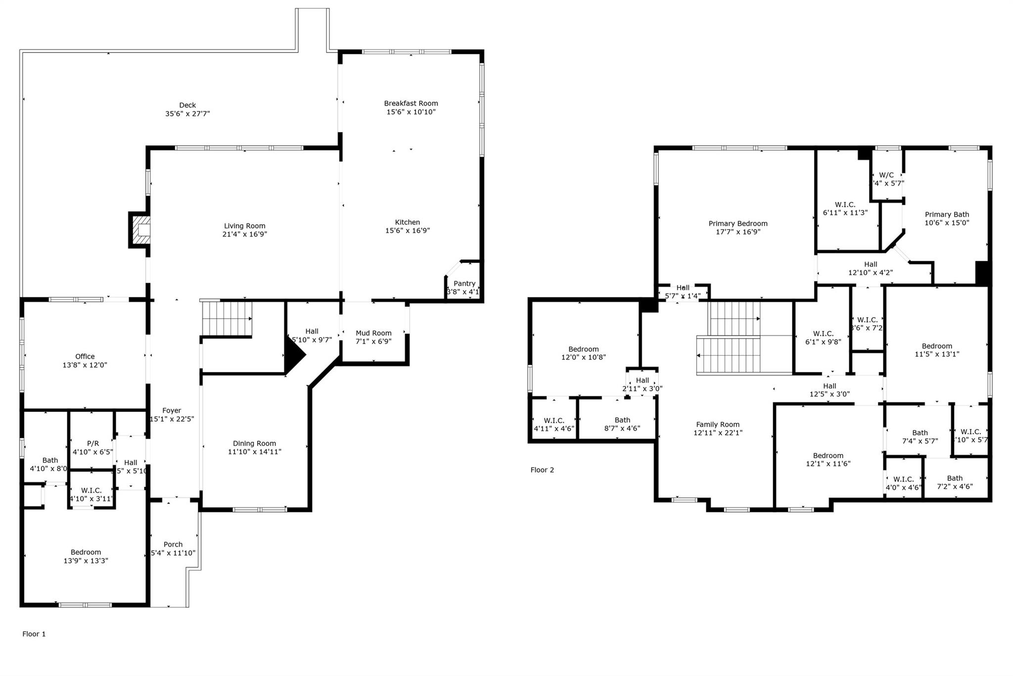
Nestled in highly desirable Eppington South, this freshly painted 5-bedroom, 4.5-bath home offers living spaces designed for both relaxation and entertaining. Step inside to discover an inviting living room filled with natural light and cozy fireplace. At the heart of the home is the expansive kitchen featuring a large island with granite countertops, walk-in pantry, butler's pantry and breakfast area. The formal dining room is ideal for hosting. A main-level guest suite provides comfort and privacy for visitors. Owner's suite, a true sanctuary with dual walk-in closets and a luxurious bathroom. Loft, 3 additional bedrooms, 2 full bathrooms with new marble tile floors, and laundry room complete the upstairs. Enjoy outdoor living in the partially covered wraparound deck complete with skylights. 3-car attached garage. Located near top-rated Fort Mill Schools, Baxter Village, Kingsley, Lake Wylie, Anne Springs Close Greenway, and easy access to I-77 to Charlotte.
Property Type:
Residential
Map
This property is a listing of Coldwell Banker Realty.Listings courtesy of Canopy MLS as distributed by MLS GRID.
© 2026 Canopy MLS. All rights reserved.
Claims of Copyright Infringement & Related Issues (17 USC § 512 et seq.)
