109 Ciara Place
Mooresville, NC
$337,180
Details & Amenities
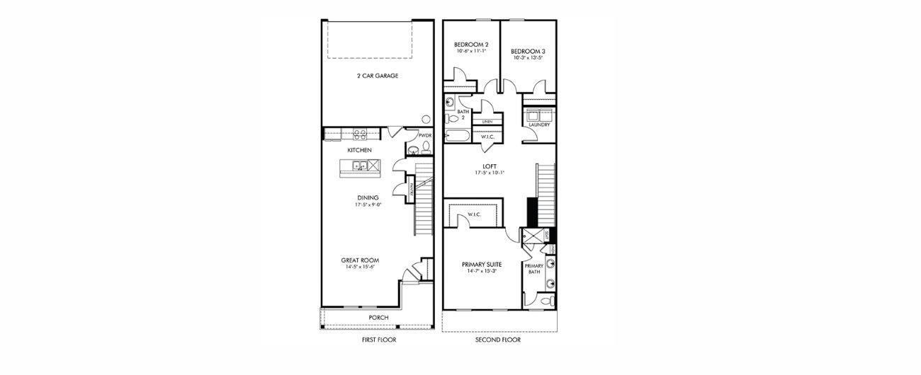
Brand new, energy-efficient home available NOW! Sip your coffee from the front porch and then step inside to be greeted by the open-concept great room and kitchen. Upstairs, the loft separates the secondary bedrooms from the primary suite, which boasts a generous walk-in closet and dual-sink bath. Crossrail Station will feature two-story energy-efficient townhomes. Located in South Mooresville just minutes away from Lake Norman and historic main street lined with a mix of boutique shops, galleries and restaurants. With three townhome floorplans built with our signature energy-efficient features, there's a plan fit for every lifestyle. Join the interest list to learn more about available homes and pricing. Each of our homes is built with innovative, energy-efficient features designed to help you enjoy more savings, better health, real comfort and peace of mind.
Property Type:
Residential
Map
This property is a listing of Meritage Homes of the Carolinas.Listings courtesy of Canopy MLS as distributed by MLS GRID.
© 2026 Canopy MLS. All rights reserved.
Claims of Copyright Infringement & Related Issues (17 USC § 512 et seq.)
