601 Country Club Drive
Rock Hill, SC
$325,000
Details & Amenities
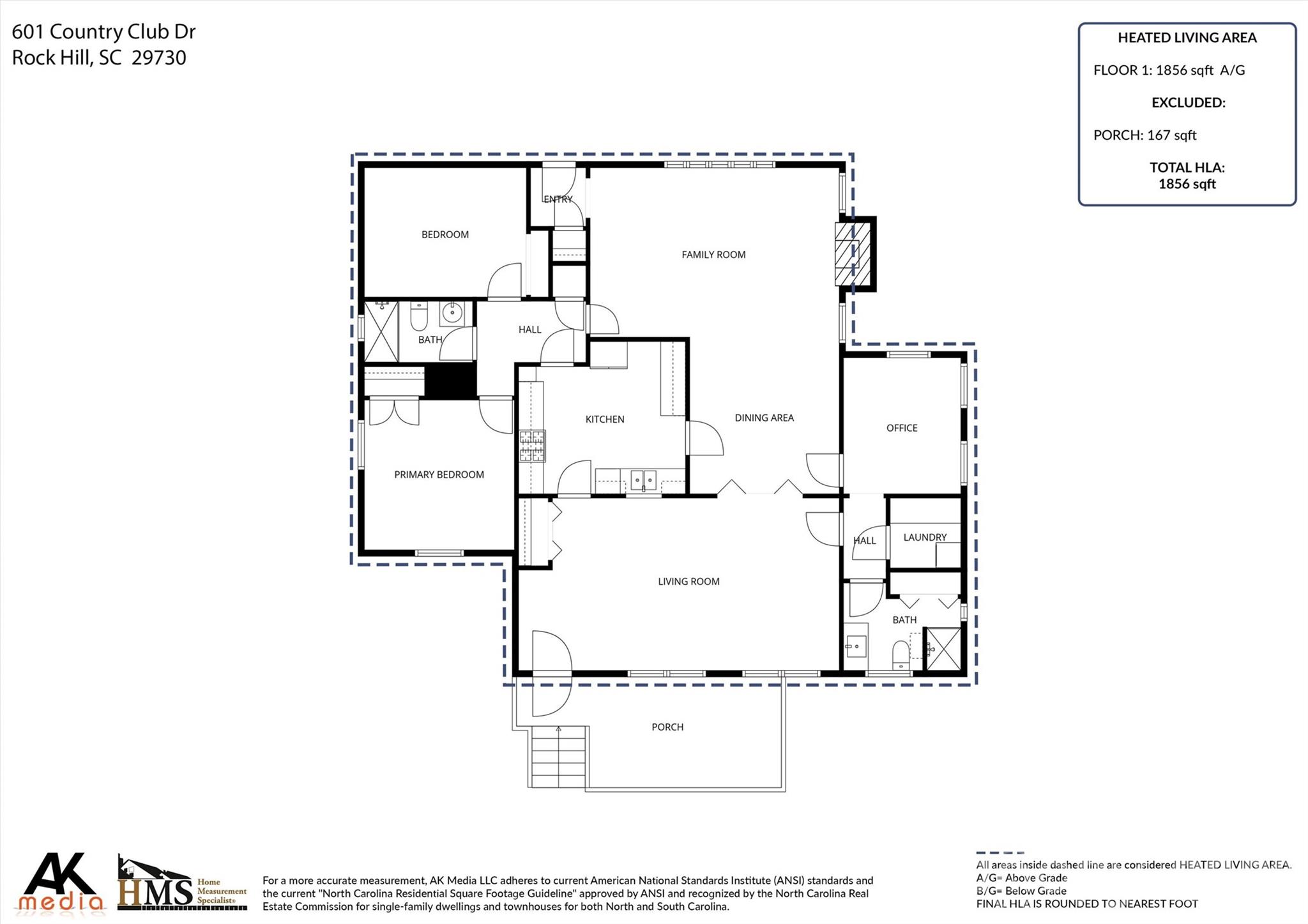
Charming Brick Ranch on a Corner Lot in Country Club Estates! This adorable brick ranch offers the perfect blend of comfort and character. Featuring three bedrooms and two bathrooms, the home boasts hardwood flooring throughout, adding warmth and timeless appeal. You’ll love the two spacious living areas — ideal for a family room, play space, or cozy hangout spots. The kitchen sits at the heart of the home and features painted white cabinets paired with granite countertops. Outside, the large corner lot is shaded by beautiful mature trees, creating a peaceful setting. A truly charming place to call home!
Property Type:
Residential
Map
This property is a listing of Keller Williams Connected.Listings courtesy of Canopy MLS as distributed by MLS GRID.
© 2026 Canopy MLS. All rights reserved.
Claims of Copyright Infringement & Related Issues (17 USC § 512 et seq.)
