3046 Meadowcrest Drive
Clover, SC
$649,900
Details & Amenities
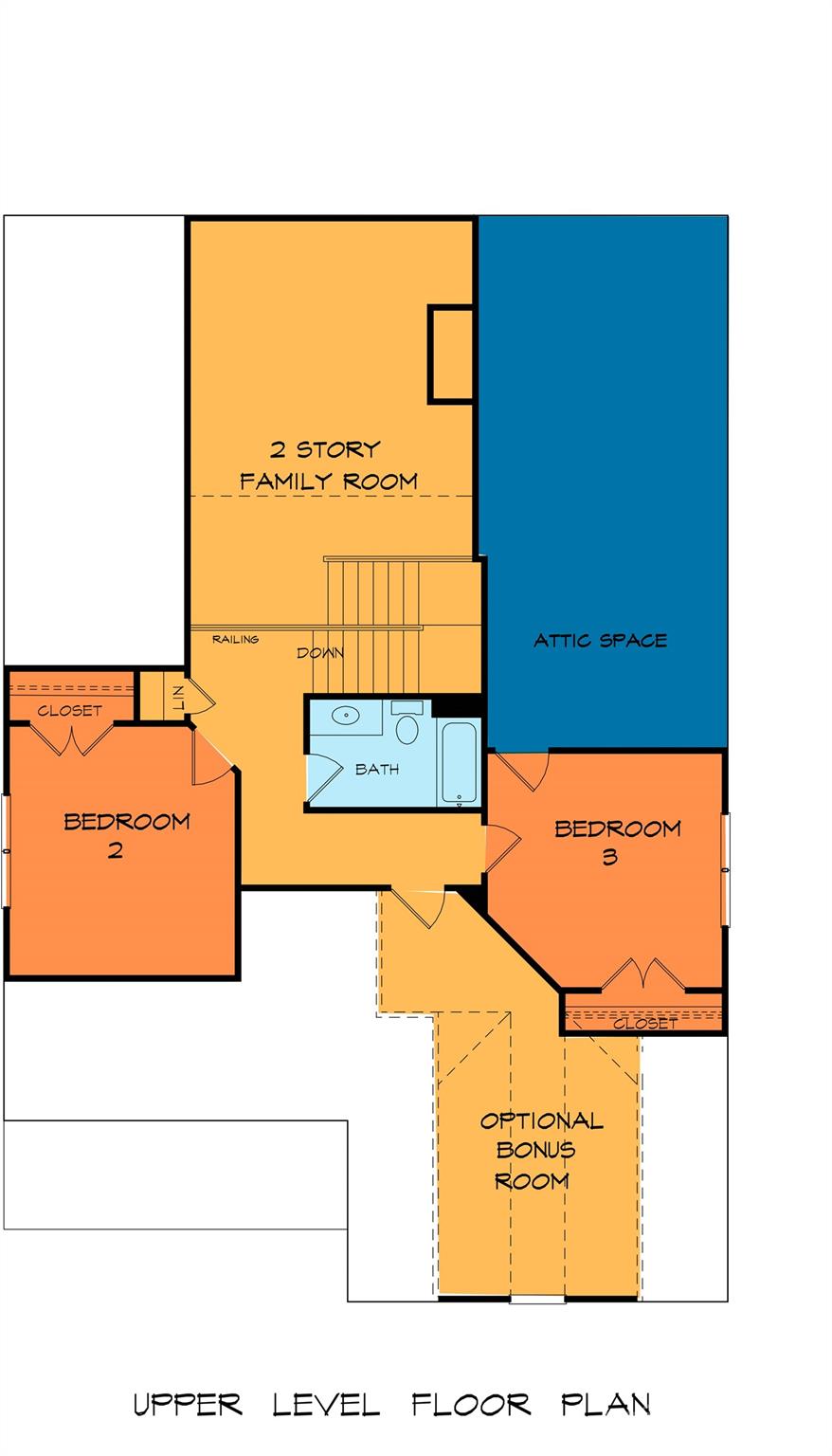
Step into your dream home on this spacious 1.27-acre lot in the beautiful Stonecrest Meadows community. This home offers a prime location with excellent curb appeal. Enjoy the privacy of a large lot while still being part of a thoughtfully planned development. Featuring a large kitchen and living area, this home is great for everyday meals or entertaining guests. The main level primary suite is a standout feature, offering a private ensuite bathroom. A unique feature is the direct access from the primary bathroom into the laundry room, adding everyday convenience and making household tasks a breeze. Completing the main floor, a convenient half bath for guests and a spacious dinning room. Upstairs you'll find three additional bedrooms and a full bathroom, idea for family, guests, or flexible spaces such as an office or playroom. Outside, enjoy a screened in covered back porch with a full acre of land for outdoor seating, gardening, or play. Located just 15 minutes from downtown York. Clover address but York school districts. Tankless gas hot water heater and high energy-efficient heat pump (14 seer rating). Comes pre-wired for easy access to Comporium and AT&T high-speed Internet. Enjoy the cost-saving benefit of water from a private well, eliminating expensive water bills, as well as no sewer bills to pay! Don't miss your chance to make this wonderful property your own, schedule a showing today!
Property Type:
Residential
Map
This property is a listing of Laureate Realty.Listings courtesy of Canopy MLS as distributed by MLS GRID.
© 2026 Canopy MLS. All rights reserved.
Claims of Copyright Infringement & Related Issues (17 USC § 512 et seq.)
