3043 Burgess Drive
Lancaster, SC
$495,000
Details & Amenities
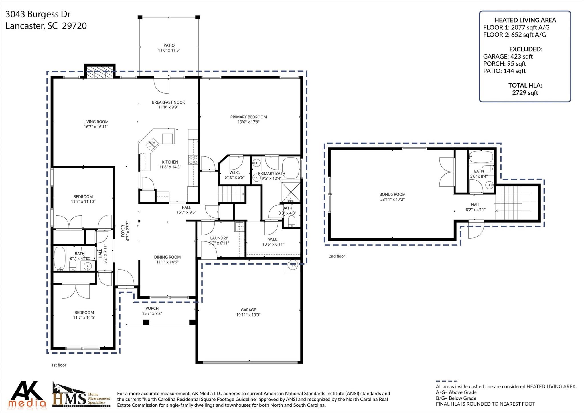
Welcome home to the resort style community of Walnut Creek in Lancaster, SC. Walnut Creek is an amenity-rich neighborhood in an area that makes Indian Land, Waxhaw, Lancaster , Rock Hill and Fort Mill within easy reach. 3043 Burgess is a one story home with a flex room with a full bathroom over the two-car garage that can be used for a bedroom, a bonus room, a playroom, or whatever you want it to be. On the main level, you have the large primary bedroom with tray ceilings , an ensuite bathroom and large walk-in closet and 2 bedrooms that share another full bathroom. The stunning designer kitchen has a breakfast nook and a full dining room, and a large living room with a gas fireplace offer plenty of space to live daily and entertain. The laundry room/mudroom rounds out the downstairs and out the back door is a private patio with a pergola for outdoor living. The carpet is new and the home has fresh paint throughout. The floorpan is uploaded in the photos, so scroll through them to the end. Residents of Walnut Creek enjoy resort-style amenities, including 2 community pools, a clubhouse, tennis and pickleball courts, a playground, a pond, walking trails, and more.
Property Type:
Residential
Map
This property is a listing of Keller Williams Connected.Listings courtesy of Canopy MLS as distributed by MLS GRID.
© 2026 Canopy MLS. All rights reserved.
Claims of Copyright Infringement & Related Issues (17 USC § 512 et seq.)
