2116 Eastway Drive
Charlotte, NC
$345,000
Status: Active Under Contract
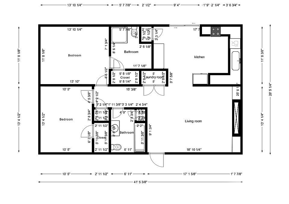
Beds: 2
Full Baths: 2
Sq ft: 1109
Sub Division: Markham Village
Elementary School: Shamrock Gardens
Middle School: Eastway
High School: Garinger
Year Built: 1961
Acerage: 0.242 Acres
MLS #: 4341066
Status: Active Under Contract
Facebook Twitter Pinterest Instagram eMail To

Details & Amenities

Fully renovated and move-in ready, this beautifully updated 2-bedroom, 2-bath home offers 1,109 square feet of modern living on a spacious 0.24-acre lot. Thoughtfully redesigned with quality finishes throughout, this home provides a functional layout and comfortable living spaces ideal for a variety of needs. Conveniently located just 15 minutes from Uptown Charlotte, 20 minutes from South End, and 17 minutes from Bank of America Stadium, with easy access to I-77 and nearby shopping, dining, and everyday conveniences. The property has previously been used as a short-term rental, offering flexibility and additional potential, subject to local regulations. Whether enjoyed as a primary residence or explored for alternative use, this property presents an excellent opportunity in a highly accessible Charlotte location. Showings begin soon — schedule your visit to experience all this home has to offer.
Property Type:
Residential


Map
This property is a listing of Keller Williams Ballantyne Area.
Listings courtesy of Canopy MLS as distributed by MLS GRID.
© 2026 Canopy MLS. All rights reserved.
Claims of Copyright Infringement & Related Issues (17 USC § 512 et seq.)