214 Clay Street
Belmont, NC
$120,000
Details & Amenities
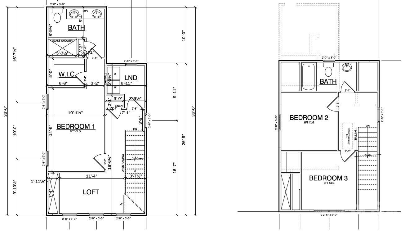
Small lot in Downtown Belmont. Recently re-platted. Approved plans available 3 bed 2.5 bath 2.5 story. Or could build a smaller 2 bed unit for an airbnb or rental.
Property Type:
Land
Map
This property is a listing of LKI Realty LLC.Listings courtesy of Canopy MLS as distributed by MLS GRID.
© 2026 Canopy MLS. All rights reserved.
Claims of Copyright Infringement & Related Issues (17 USC § 512 et seq.)
