970 Fern Avenue
Charlotte, NC
$650,000
Details & Amenities
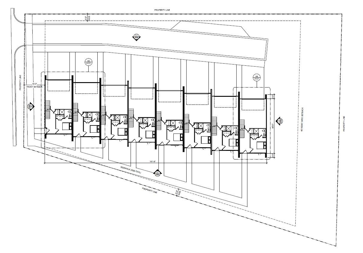
Walking distance from uptown Charlotte, this lot is ready for development in the booming Enderly Park area. Plan have been approved for 8 townhomes and the lot is already subdivided. Architectural plans have been created with units at 2024 sqft, 3 bed, 3.5 bath, 737sqft rooftop terrace, private fronch porch and backyard facing the woods. Charlotte Engineering, Topographical Surveys, Urban Forestry, Sewer/Water, CDOT and Land Development plans/approvals in place. City Storm Water Mitigation Fee paid.
Property Type:
Land
Map
This property is a listing of Keller Williams Connected.Listings courtesy of Canopy MLS as distributed by MLS GRID.
© 2026 Canopy MLS. All rights reserved.
Claims of Copyright Infringement & Related Issues (17 USC § 512 et seq.)
