116 Stover Road
Mooresville, NC
$850,000
Details & Amenities
Welcome to this meticulously maintained waterfront retreat. Tucked away on a peaceful cul-de-sac with no HOA restrictions, this home combines privacy with convenience. Just bring your boat and start enjoying everything this home has to offer.
Boasting over 150 feet of shoreline, relax on the newly installed stone patio,deck or soak in the hot tub after a day in the sun. Enjoy effortless lake access from your private dock, complete with a newer High Tide 9,000-pound remote-controlled boat lift (2021). The fenced backyard provides a secure space for recreation and includes a storage shed for all your lake essentials.
Inside, the move-in ready home features a welcoming great room accented by crown molding and a striking stacked-stone feature wall. The kitchen captures beautiful lake views through new sliding glass doors that lead to an expansive wraparound deck. Highlights include abundant natural light, granite countertops, tile backsplash, tile flooring, and updated appliances such as a newer refrigerator and dishwasher. The dining area adds character with shiplap walls, a designer chandelier, and direct deck access.
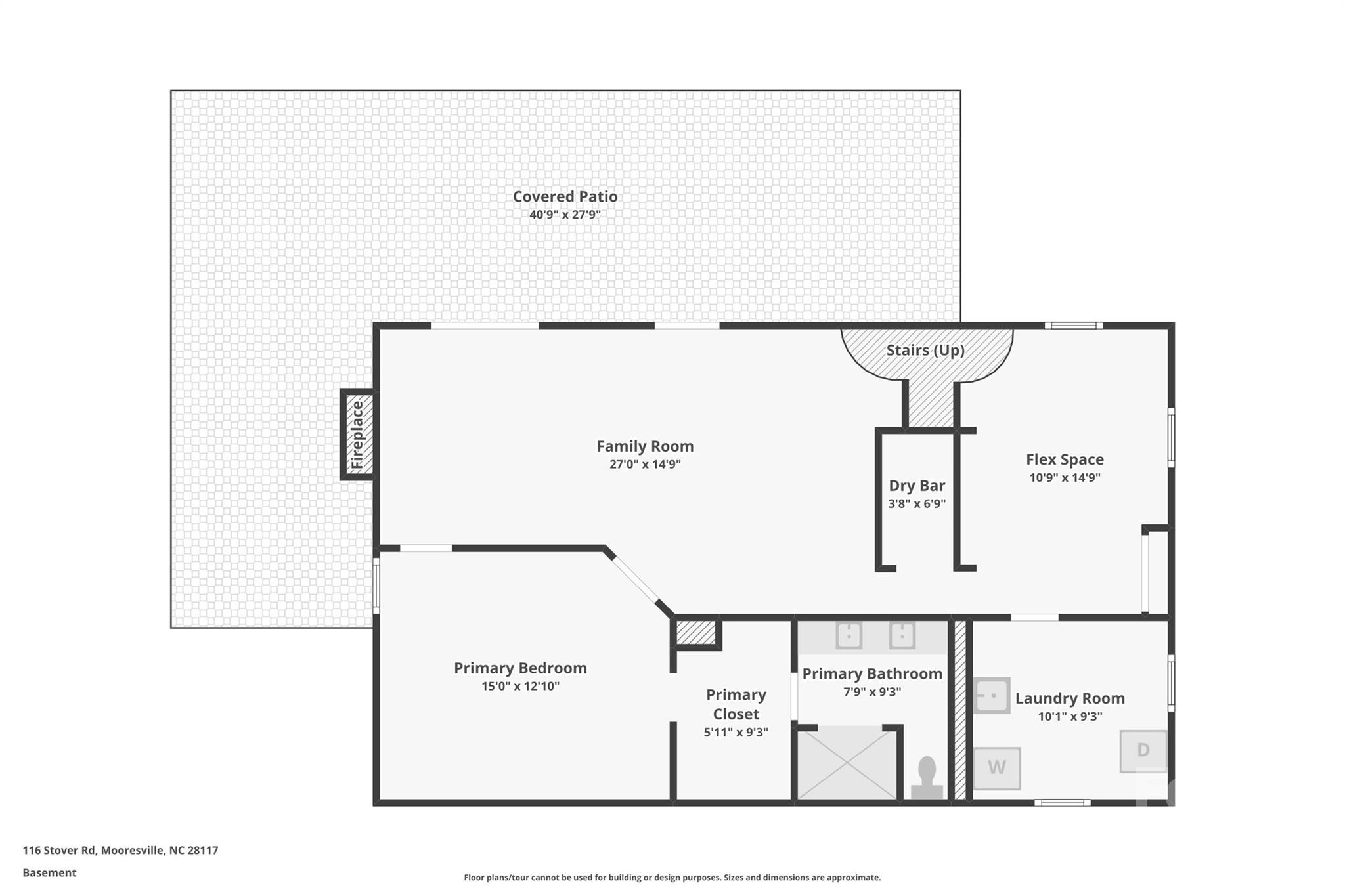
The lower level offers a spacious recreation room with a built-in bar - ideal for hosting gatherings after a day on the water. The primary suite is also located downstairs and features a renovated bathroom with a large walk-in spa-style shower. A wood-burning fireplace with stove insert and blower efficiently heats the entire home during cooler months, and the chimney has been recently updated.
Other recent upgrades include a new water heater, gutters, hot tub, refrigerator and dishwasher. Newer HVAC system (2023), whole-home water filtration system (2021).
Ideally situated both on and off the lake, the home is just minutes from dining, shopping, marinas, waterfront restaurants, schools, I-77, and more - offering the perfect blend of relaxation and accessibility.
Water Body:
Lake Norman
Property Type:
Residential
Map
This property is a listing of Nagy Properties.Listings courtesy of Canopy MLS as distributed by MLS GRID.
© 2026 Canopy MLS. All rights reserved.
Claims of Copyright Infringement & Related Issues (17 USC § 512 et seq.)
