6402 Marshville Boulevard
Marshville, NC
$850,000
Details & Amenities
Prime Commercial Opportunity with Exceptional Highway Visibility in Marshville
Outstanding road frontage on highly traveled HWY 74 in the city of Marshville, with average daily traffic counts ranging from 18,000–30,000 vehicles per day, offering maximum exposure for your business. 23 parking spots available with potentially 30 more if needed.
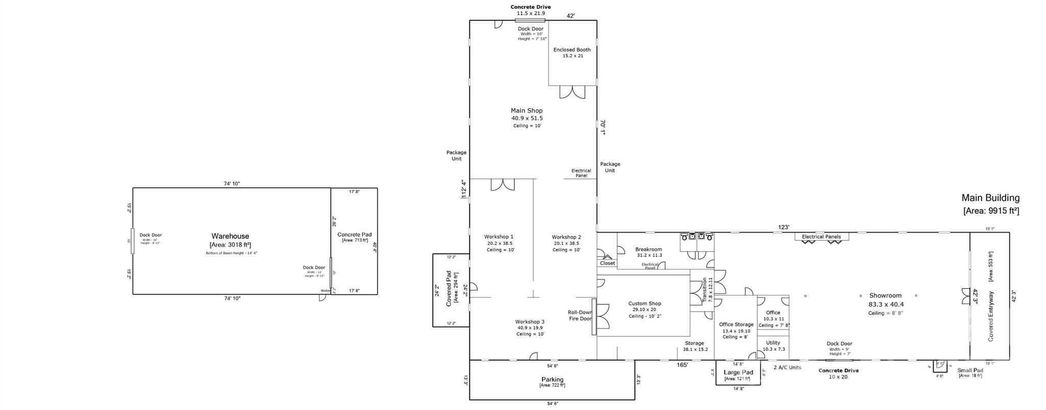
This versatile commercial property features approximately 12,932 total square feet and was previously operated as an antique car restoration shop and showroom, making it ideal for automotive, showroom, service, warehouse, or mixed commercial use.
The main building includes approximately 9,915 heated square feet with workshop and showroom space, office areas, restrooms, two drive-in doors, and a firewall door for added functionality and safety. An additional 3,018-square-foot warehouse offers two more drive-in doors and flexible storage or production capacity.
Whether you’re relocating, expanding, or launching a new venture, this high-visibility property offers outstanding adaptability and endless potential uses.
Property Type:
Commercial Sale
Map
This property is a listing of Howard Hanna Allen Tate Charlotte South.Listings courtesy of Canopy MLS as distributed by MLS GRID.
© 2026 Canopy MLS. All rights reserved.
Claims of Copyright Infringement & Related Issues (17 USC § 512 et seq.)
