719 Deerbrook Lane
Tega Cay, SC
$475,000
Details & Amenities
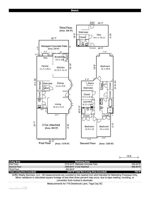
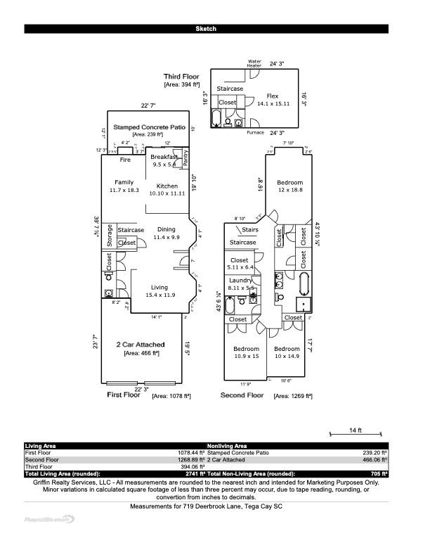
Discover Tega Cay living at its finest in this spacious 3 story townhome, tucked away on a private cul-de-sac on a dead end street with a view of the pond and the 18th hole of Tega Cay Golf Club. Step inside to an inviting open layout where the living, dining, and family rooms flow seamlessly. Large windows over the fireplace fill the space with natural light, enhancing the cozy atmosphere. The kitchen features updated appliances and a breakfast nook, perfect for enjoying your morning coffee on the scenic oversized concrete stamped patio. The second floor hosts a primary suite, two additional bedrooms, a full bath, and laundry, while the third floor offers a versatile bonus room and extra bath. The beautifully landscaped yard showcases vibrant perennials. Recent upgrades include a new roof 2018, HVAC 2017, plantation shutters, primary bath updated tile and shower, and kitchen appliances. All Pex plumbing replaced 2019 and hot water tank 2022. End unit backs up to woods with 2 car epoxy garage. Embrace the amenities and active lifestyle of Tega Cay with walking trails, the Tega Cay clubhouse restaurant with live music or a quick bite on the outdoor deck. Enjoy a round of golf, tennis or pickle ball right in the neighborhood or head down to Windjammer Park beach. Resort living every day with the charm of Tega Cay. Preferred lender offering $2,500 in closing costs and seller will consider additional closing costs/rate buy down with acceptable offer.
Water Body:
Lake Wylie
Property Type:
Residential
Map
This property is a listing of Coldwell Banker Realty.Listings courtesy of Canopy MLS as distributed by MLS GRID.
© 2026 Canopy MLS. All rights reserved.
Claims of Copyright Infringement & Related Issues (17 USC § 512 et seq.)
