12125 Avienmore Drive
Charlotte, NC
$623,000
Details & Amenities
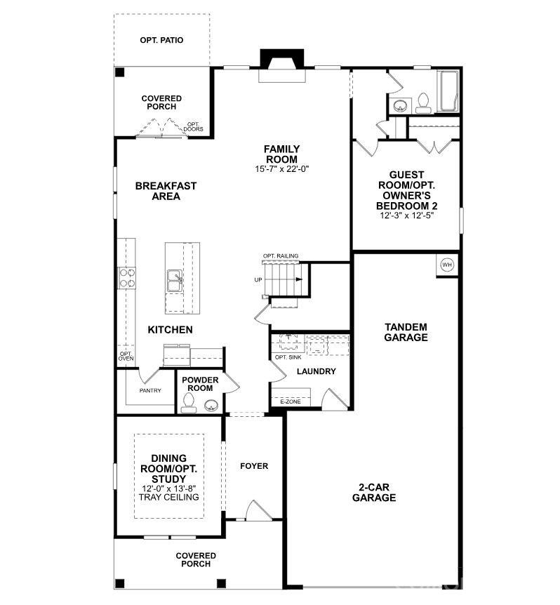
Welcome to the Sonoma! Walking in from the front covered porch you are greeted with a warm and inviting 2-story foyer. Just off the foyer is a private study, complete with glass paned French doors for maximum privacy. The home opens up to the family room, kitchen and breakfast area. The kitchen is equipped with stainless steel appliances, gas cooktop, exhaust hood, quartz countertops and a kitchen island with a sink. The family room is spacious and inviting with a gas fireplace, perfect for colder nights. You'll notice throughout the main living areas of this level is easily maintainable EVP flooring and 5" crown molding. Through the French doors is a covered porch, ideal for entertaining or enjoying a morning coffee. The main level laundry room features a laundry sink and overhead cabinets to make laundry days a breeze. Finishing this level is a main level guest bedroom with a shared bathroom, complete with a tiled shower. Upstairs you are greeted with a loft to add an additional living space. There are three additional bedrooms, one with a private bathroom and an additional shared bathroom. Through the double doors you will find the Owners suite that has been accented with a tray ceiling and 5" crown molding to enhance the elegance. The en-suite is fit for a spa, with an expanded tiled shower featuring dual shower heads, a bench and a seperate drying area. The dual vanity and private toilet area allows for maximum space and privacy for everyone to get ready in the mornings. Finally, the walk-in closet is spacious and is sure to accommodate any size wardrobe! Welcome to your new home!
Property Type:
Residential
Map
This property is a listing of M/I Homes.Listings courtesy of Canopy MLS as distributed by MLS GRID.
© 2026 Canopy MLS. All rights reserved.
Claims of Copyright Infringement & Related Issues (17 USC § 512 et seq.)
