581 Nesbe Street
Lancaster, SC
$357,490
Details & Amenities
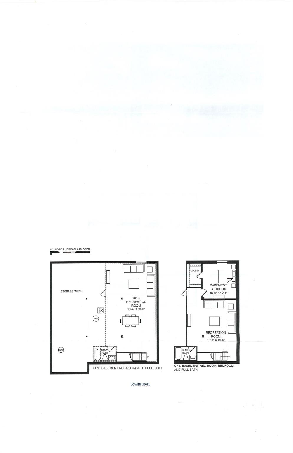
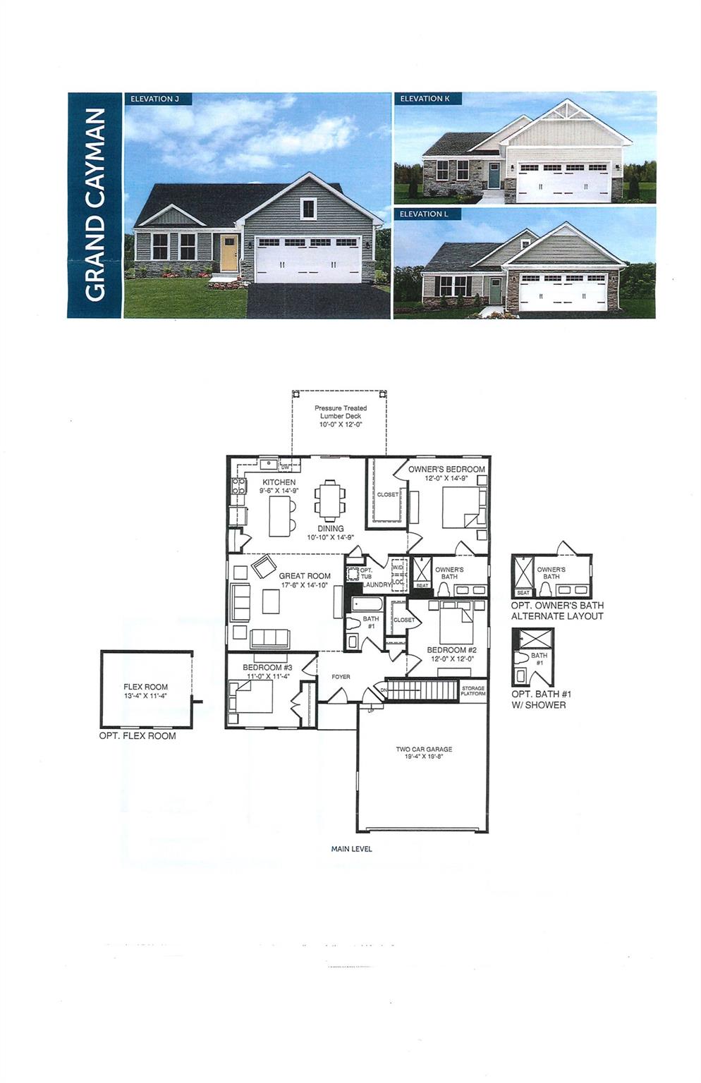
Welcome home to the Grand Cayman in the desirable Basildon neighborhood at Basildon Ranches, where modern one-level living meets a vibrant community lifestyle. This most popular open-concept ranch floorplan offers a bright, inviting feel with a stylish kitchen featuring granite countertops, a spacious central island with pull-out shelving, stainless steel GE appliances including a refrigerator, convenient lower pull-out trays, and a built-in trash bin—all flowing seamlessly into the family room for easy entertaining and everyday comfort. Large windows fill the home with natural light, enhancing its warm and pleasant atmosphere. The spacious primary suite accommodates a king-size bed and includes a generous walk-in closet and a private en-suite bath with a semi-frameless walk-in shower. The partially finished basement adds versatility with a rec room, bedroom, full bathroom, deck access, and a large unfinished storage area, offering both flexibility and future potential. Buyers can also personalize the home with designer finish selections. Beyond the home, Basildon Ranches offers amenities such as a dog park, playground, pickleball courts, and scenic walking trails, all just 15 minutes from Indian Land, SC and a short drive to Waxhaw, NC for shopping, dining, parks, and historic downtown charm. Plus, receive up to $10,000 in closing cost credits when using our preferred lender. Call today to schedule your tour of our community and fully furnished model home!
Property Type:
Residential
Map
This property is a listing of Century 21 Providence Realty.Listings courtesy of Canopy MLS as distributed by MLS GRID.
© 2026 Canopy MLS. All rights reserved.
Claims of Copyright Infringement & Related Issues (17 USC § 512 et seq.)
