2123 Rolling Hills Court
Stanley, NC
$419,980
Details & Amenities
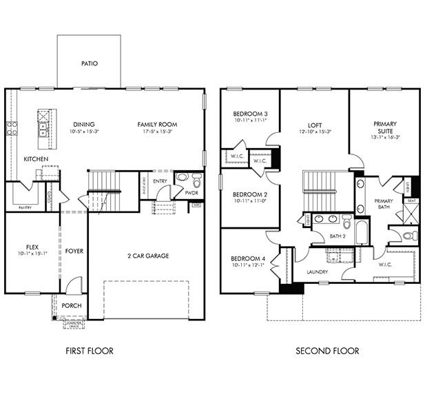
Brand new, energy-efficient home available NOW! Outfit the Dakota's main-level flex space as a home office and skip your commute. In the kitchen, the island overlooks the open living space. Upstairs, the loft separates the secondary bedrooms from the primary suite. Located in Stanley, you'll find a variety of ranch and two-story single-family homes with energy-efficient features and unique open-concept floorplans for every lifestyle. Homeowners can enjoy the easy access to shopping, dining and entertainment available in Downtown Stanley and Mt. Holly. Check out nearby towns to see what draws people to the small-town living vibe in Stanley. Join the community and learn how you can call Harper Landing home. Each of our homes is built with innovative, energy-efficient features designed to help you enjoy more savings, better health, real comfort and peace of mind.
Property Type:
Residential
Map
This property is a listing of Meritage Homes of the Carolinas.Listings courtesy of Canopy MLS as distributed by MLS GRID.
© 2026 Canopy MLS. All rights reserved.
Claims of Copyright Infringement & Related Issues (17 USC § 512 et seq.)
