3565 Big Timber Drive
Sherrills Ford, NC
$549,000
Details & Amenities
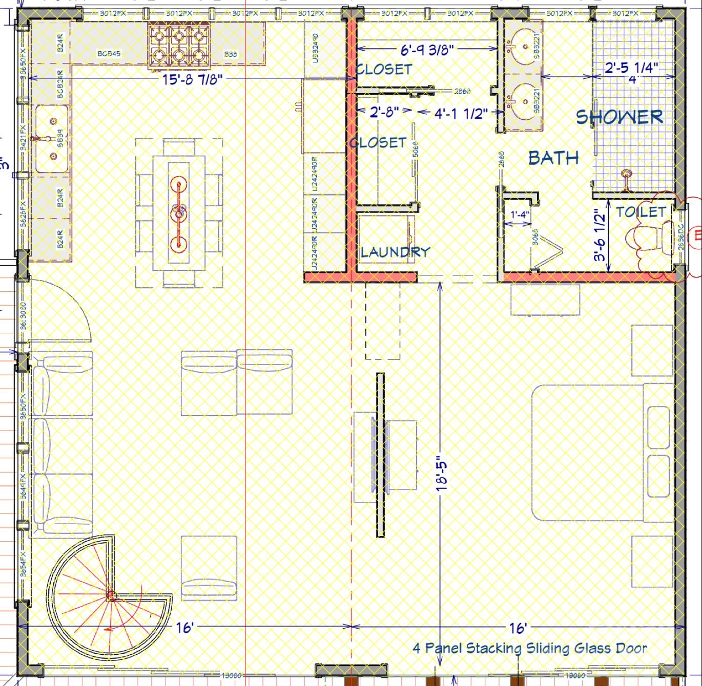
A Contemporary dream for efficient living with all the comforts. Builder will begin construction soon and buyers can choose the final touches. Main level has 2 Car Garage, finished Office/Den/Workout and Full Bath. An Elevator goes in place of the spiral stairs shown on plan, takes you to the upper level for an Open Living and Gourmet Kitchen. Kitchen will include high end stainless steel appliances. Primary Bedroom has a huge Closet and Laundry. Primary Bath includes oversized shower and dual sinks. Located on 0.68 acre lot with well and septic. Property will come with lake access and day dock within a short distance from home.
Buyer can add pool $125k, hot tub $45k, pool house $75k. Room for an additional Garage.
Property Type:
Residential
Map
This property is a listing of COMPASS.Listings courtesy of Canopy MLS as distributed by MLS GRID.
© 2026 Canopy MLS. All rights reserved.
Claims of Copyright Infringement & Related Issues (17 USC § 512 et seq.)
