7019 Sonja Drive
Clover, SC
$340,000
Details & Amenities
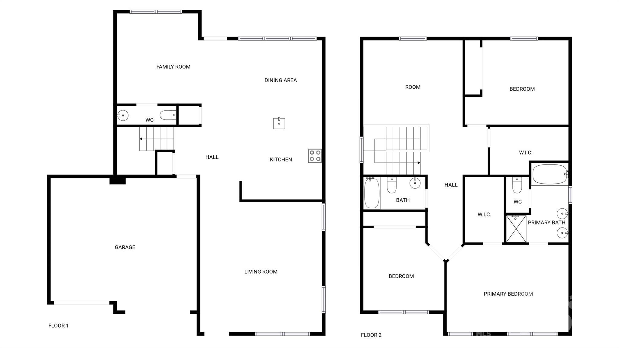
Welcome to this beautifully updated home. The interior boasts a fresh coat of neutral color paint, giving it a modern and sophisticated feel. The primary bathroom is a haven of luxury with separate tub and shower and double sinks, ensuring ample space for your morning routine. The kitchen is a chef's dream, equipped with all new stainless steel appliances and an accent backsplash that adds a touch of elegance. Partial flooring replacement adds a fresh and clean feel to the home. The property also features a serene patio in the back yard, perfect for outdoor relaxation. With these fantastic features, this home is a must-see.. Included 100-Day Home Warranty with buyer activation
Property Type:
Residential
Map
This property is a listing of Opendoor Brokerage LLC.Listings courtesy of Canopy MLS as distributed by MLS GRID.
© 2025 Canopy MLS. All rights reserved.
Claims of Copyright Infringement & Related Issues (17 USC § 512 et seq.)
