108 Jim Parker Road
Wesley Chapel, NC
$375,000
Details & Amenities
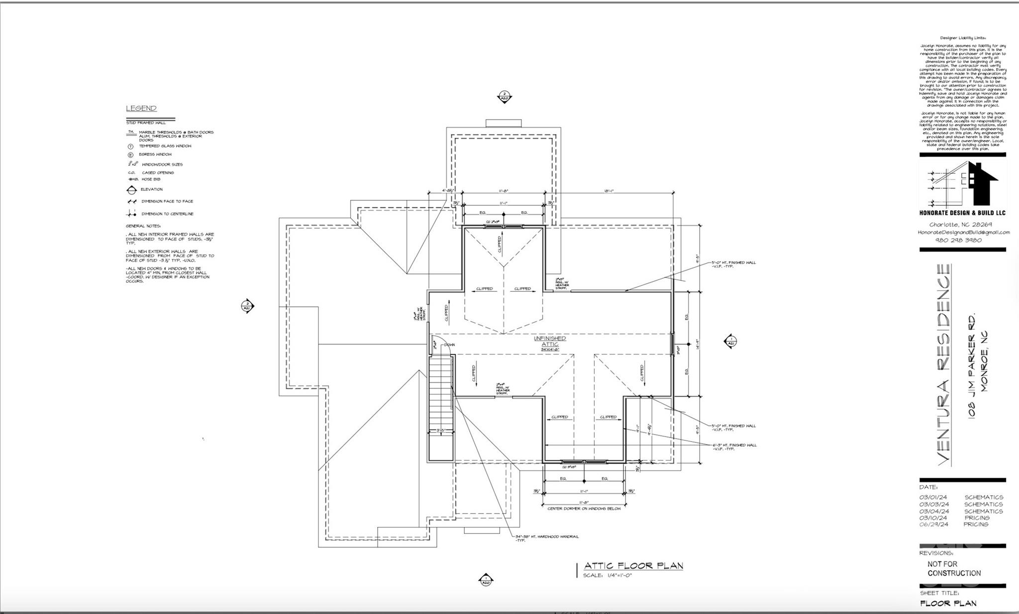
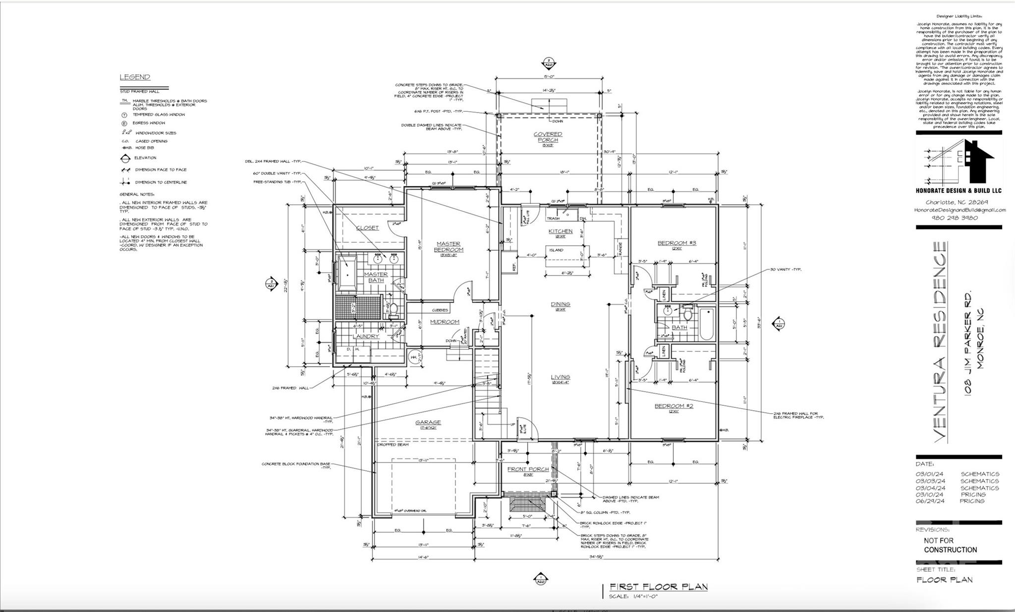
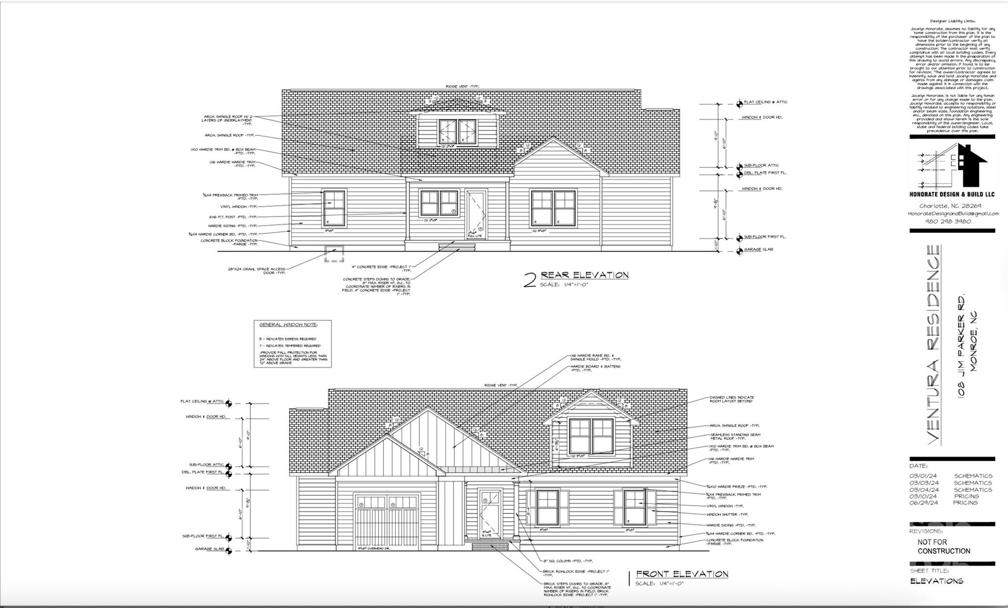
Finish your dream home in the Weddington School District (Wesley Chapel Elementary) with no HOA restrictions! This partially completed project offers a solid foundation, double-wrapped for UV protection, and the potential for approximately 2,522 sq. ft., including three bedrooms, three full baths, and a full-second-floor bonus room—ideal for a family retreat, studio, or entertainment space.
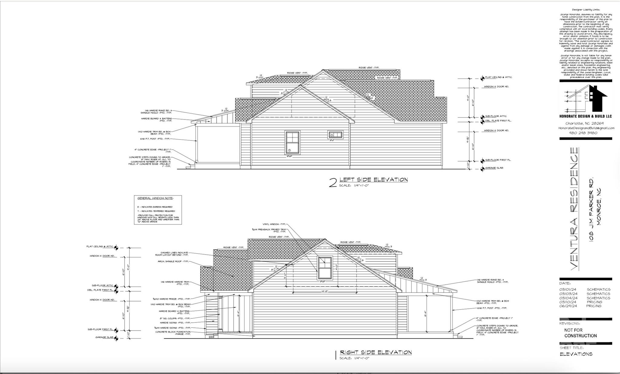
The main level has two roughed-in full baths, with plumbing for a third upstairs. Andersen 100 windows provide energy efficiency and natural light. Key infrastructure is already in place: solid-filled block crawl space, well, and septic tanks with an issued permit.
This property is under construction; showings by appointment only through ShowingTime. Renovation or construction financing may be required. Whether you’re a builder, investor, or buyer ready to customize a home to your exact taste, this is a rare opportunity to bring your vision to life.
Property Type:
Residential
Map
This property is a listing of Keller Williams South Park.Listings courtesy of Canopy MLS as distributed by MLS GRID.
© 2026 Canopy MLS. All rights reserved.
Claims of Copyright Infringement & Related Issues (17 USC § 512 et seq.)
