1088 Arundle Road
Sherrills Ford, NC
$399,000
Details & Amenities
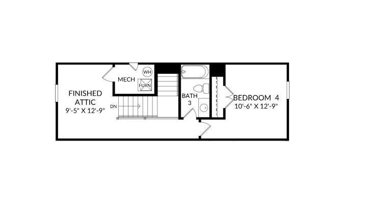
Carefully crafted two-story home in a lively 55+ community, designed for comfort and modern convenience. The main level features two spacious bedrooms, including a primary suite with a well-appointed full bath and generous closet space. A versatile office space with glass doors offers an ideal setting for work or quiet relaxation. The kitchen, perfect for cooking and entertaining, boasts a large island, sleek countertops, and high-quality appliances, creating a fluid space for gatherings. The inviting living area, warmed by a stylish electric fireplace, fosters a cozy atmosphere for leisure or social events. Step outside to the serene rear screened-in porch, ideal for enjoying morning coffee or peaceful evenings. Upstairs, a spacious bedroom with a full bath and a generous bonus room provides flexible space for guests, hobbies, or entertainment. This home blends contemporary style with enduring comfort in a vibrant community setting! Schedule your tour today!
Property Type:
Residential
Map
This property is a listing of SM North Carolina Brokerage.Listings courtesy of Canopy MLS as distributed by MLS GRID.
© 2025 Canopy MLS. All rights reserved.
Claims of Copyright Infringement & Related Issues (17 USC § 512 et seq.)
