2619 Palm Avenue
Charlotte, NC
$1,150,000
Details & Amenities
Experience elevated living in this thoughtfully crafted new home, ideally located in the heart of Country Club Heights.
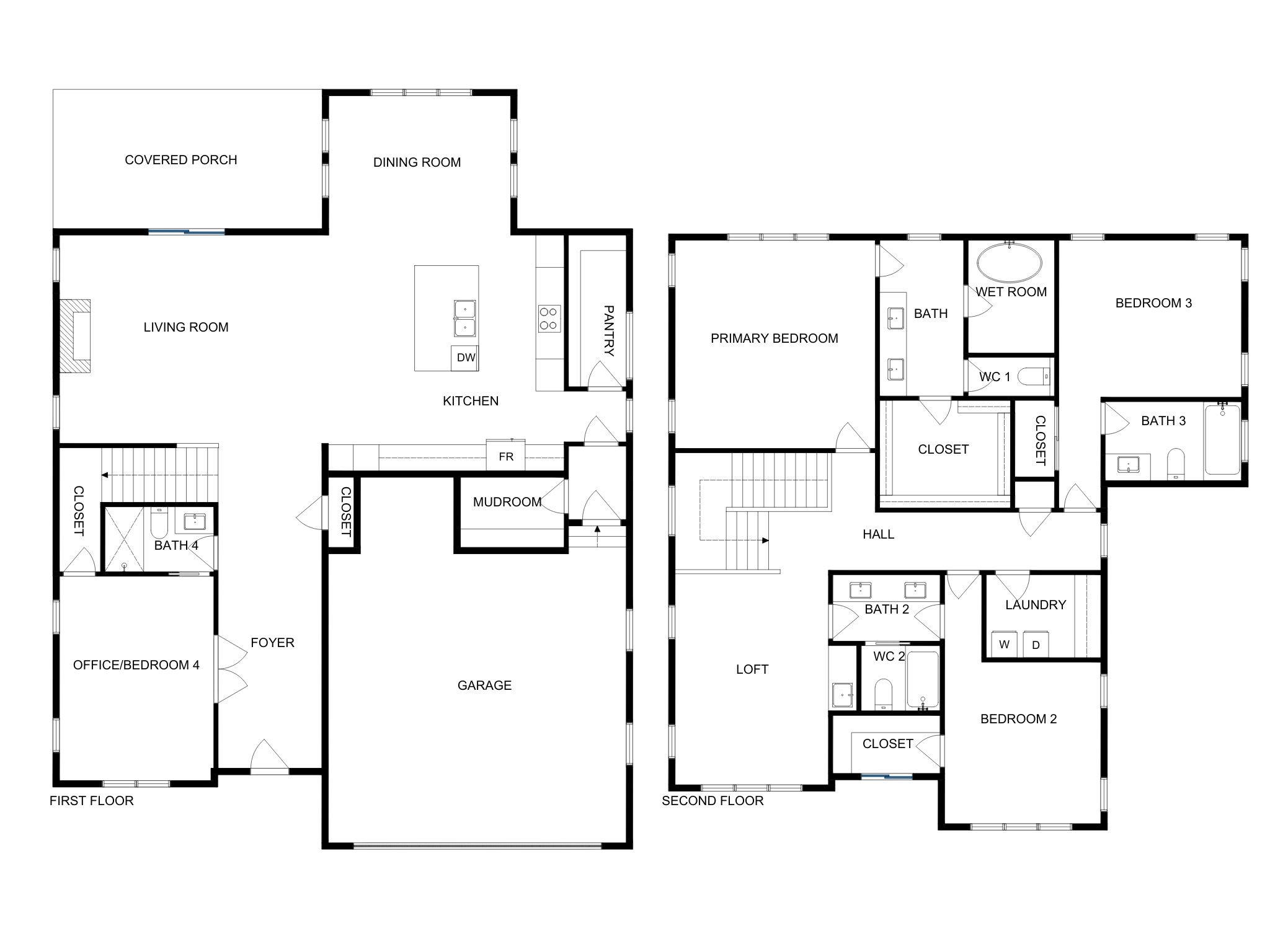
This brand-new 4-bedroom, 3-bath home offers over 3,300 square feet of beautifully designed space tailored for today’s lifestyle. Every element has been carefully curated—from wide-plank flooring and designer lighting to a cohesive finishes package that balances timeless elegance with current design trends.
At the center of the home, the chef’s kitchen stuns with custom cabinetry, sleek quartz countertops, a striking backsplash, and a central island that invites gathering. The walk-in pantry and scullery add both form and function—enhancing everyday efficiency without sacrificing style.
The main level includes a private guest suite, offering comfort and flexibility. Upstairs, the primary suite is a true retreat, complete with a spa-inspired bath featuring a soaking tub, walk-in shower, and a custom-designed closet. Two additional bedrooms, a stylish guest bath, and a versatile bonus room offer room to grow, create, or unwind.
Step outside to a covered outdoor living space that opens to a private, fenced backyard—perfect for entertaining or quiet evenings at home. Just minutes from Uptown, NoDa, and Plaza Midwood, this home pairs smart design with modern style in one of Charlotte’s most vibrant and walkable neighborhoods.
Property Type:
Residential
Map
This property is a listing of Charlotte Living Realty.Listings courtesy of Canopy MLS as distributed by MLS GRID.
© 2026 Canopy MLS. All rights reserved.
Claims of Copyright Infringement & Related Issues (17 USC § 512 et seq.)
