6316 Landsford Road
Marshville, NC
$265,000
Details & Amenities
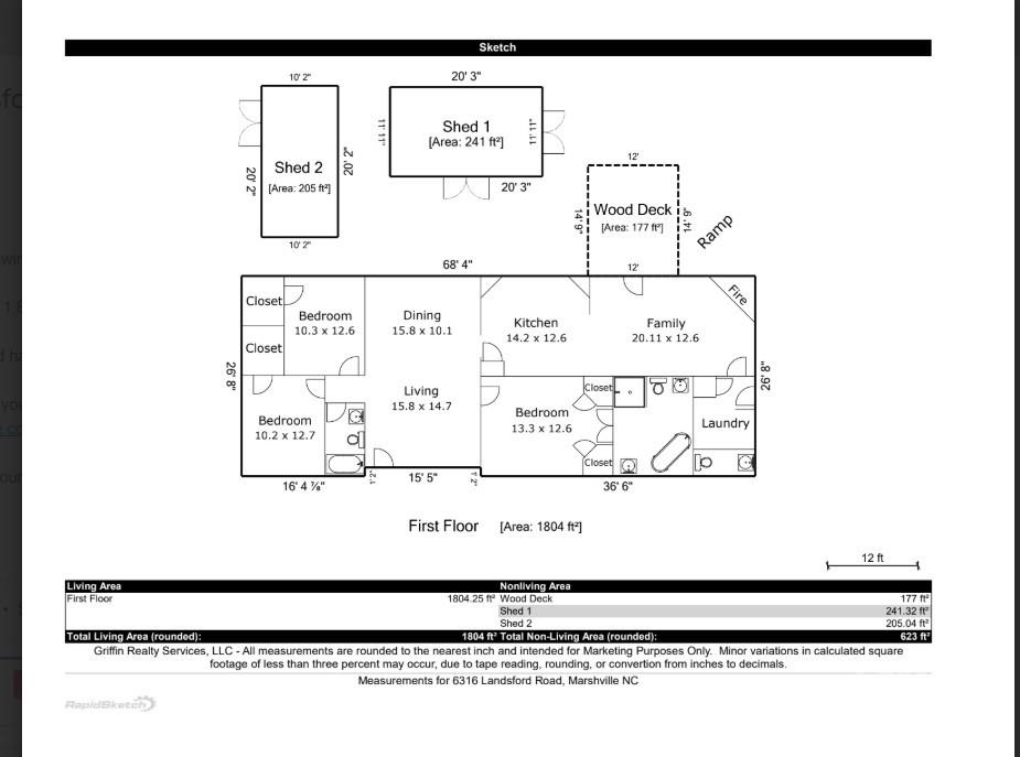
(New light beige carpet to be installed in 3 bedrooms on Oct. 28). Lovely and private, this 3-bedroom, 2.5-bath home sits on 1.56 acres surrounded by nature. The spacious layout features a welcoming living and dining room combination, plus a cozy den with a gas fireplace just off the large kitchen — complete with a movable island, abundant cabinets, generous counter space, and stainless steel kitchen appliances which are 2 years old - the stove offers a variety of cooking choices. The split floor plan offers a private primary suite on one side of the home with two closets and a full bath with a garden tub and shower. On the other side of the living room are two secondary bedrooms with walk in closets and full bath. New light beige carpet to be installed on Oct. 28). Enjoy the outdoors from the back wood deck, perfect for relaxing or entertaining. RV hookup with 30 amp. Additional highlights include an encapsulated crawl space, two outbuildings, one wired 220 and the other could easily be used as a small barn. Some furniture is also available for sale. This home is ideal for first-time buyers looking for a peaceful setting with plenty of space and comfort. Transferable home warranty.
Property Type:
Residential
Map
This property is a listing of RE/MAX Executive.Listings courtesy of Canopy MLS as distributed by MLS GRID.
© 2025 Canopy MLS. All rights reserved.
Claims of Copyright Infringement & Related Issues (17 USC § 512 et seq.)
