1324 Copper Leaf Drive
Rock Hill, SC
$605,900
Status: Active
Beds: 4
Full Baths: 3
Half Baths: 1
Sq ft: 2588
Sub Division: Stoneridge Hills
Elementary School: York Road
Middle School: Saluda Trail
High School: South Pointe (SC)
Year Built: 2025
Acerage: 0.37 Acres
MLS #: 4312804
Status: Active
Facebook Twitter Pinterest Instagram eMail To

Details & Amenities

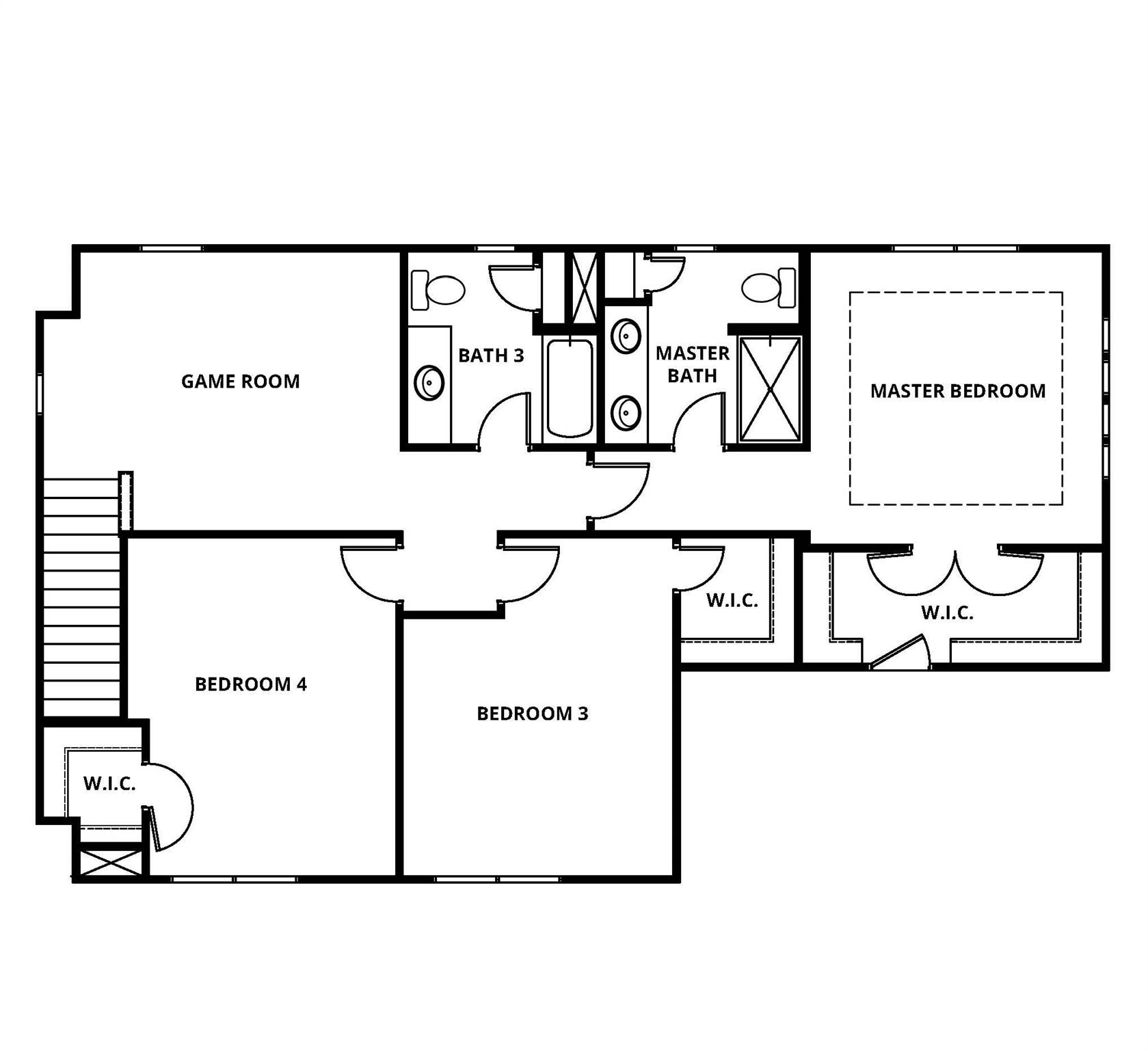
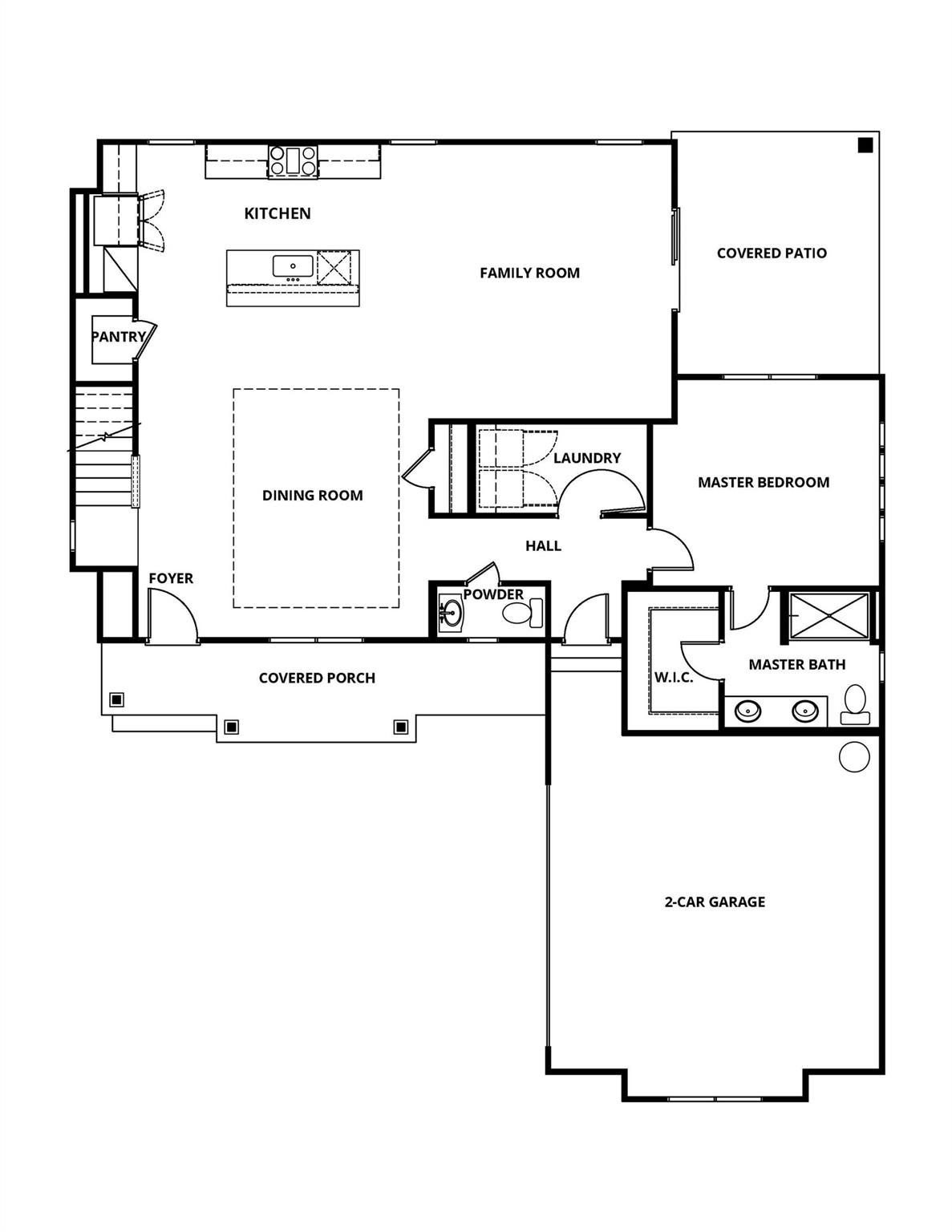
You must see this beautiful homesite! You will find this home at the very back of the property on a wooded cul-de-sac lot. The Richland floor plan is a brilliantly designed home that provides the space and flexibility that you desire. The main floor of this two-story home showcases an open family room located directly off the fully equipped kitchen and dining area. One of the two incredible master retreats is tucked in the back corner of the home providing a private escape to unwind at the end of the day. The second story of the Richland also provides tons of space. Here, you will find a game room where you can set up a pool table or even convert into a media room. Off the game room, you have three secondary bedrooms, including an additional master bedroom, and two full bathrooms. With its flexible layout, the Richland will accommodate your family's needs for years to come. Please ask about our builder incentives.
Property Type:
Residential


Map
This property is a listing of LGI Homes NC LLC.
Listings courtesy of Canopy MLS as distributed by MLS GRID.
© 2025 Canopy MLS. All rights reserved.
Claims of Copyright Infringement & Related Issues (17 USC § 512 et seq.)