1318 Copper Leaf Drive
Rock Hill, SC
$609,900
Status: Active
Beds: 5
Full Baths: 3
Half Baths: 1
Sq ft: 2690
Sub Division: Stoneridge Hills
Elementary School: York Road
Middle School: Saluda Trail
High School: South Pointe (SC)
Year Built: 2025
Acerage: 0.32 Acres
MLS #: 4312829
Status: Active
Facebook Twitter Pinterest Instagram eMail To

Details & Amenities

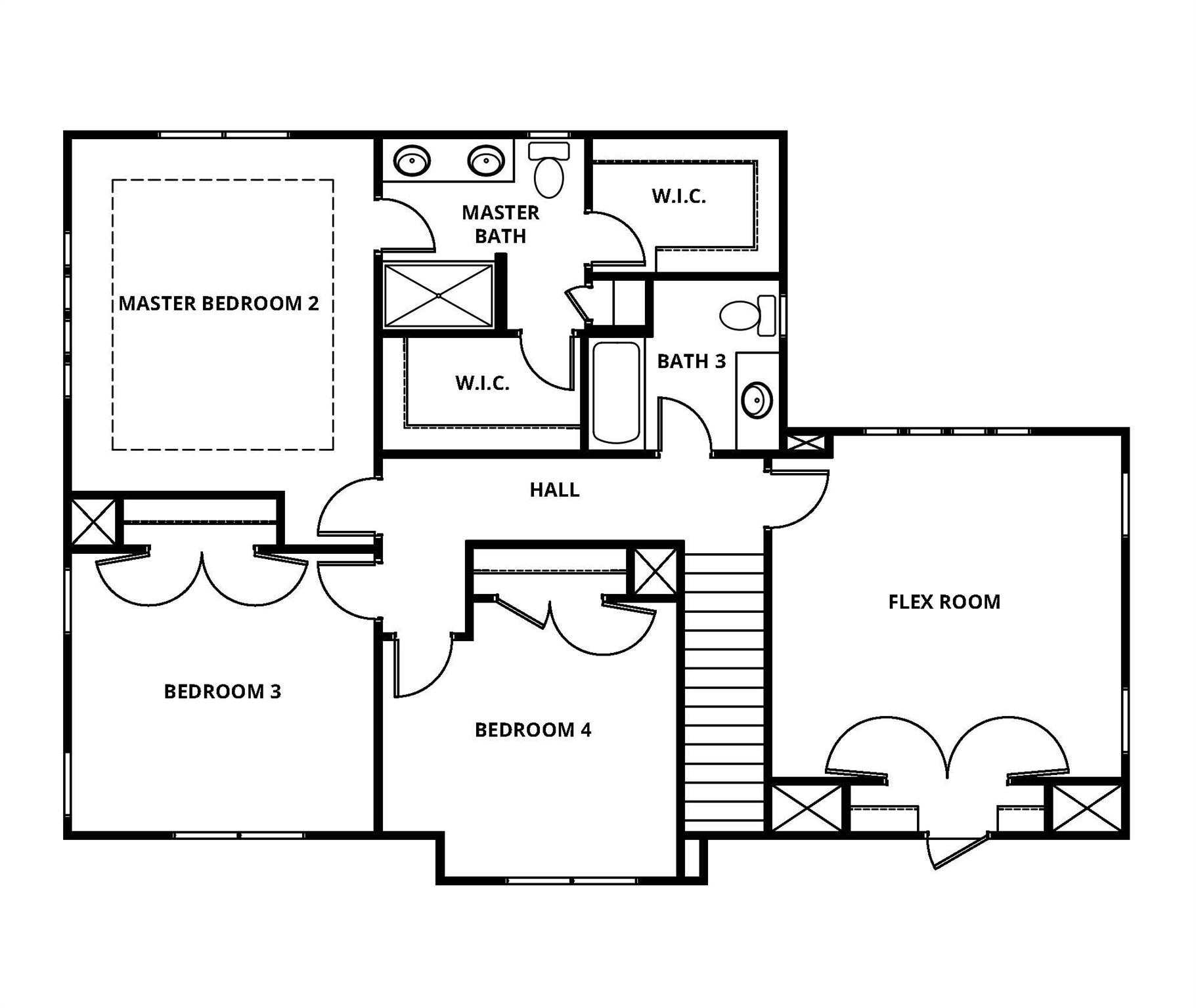
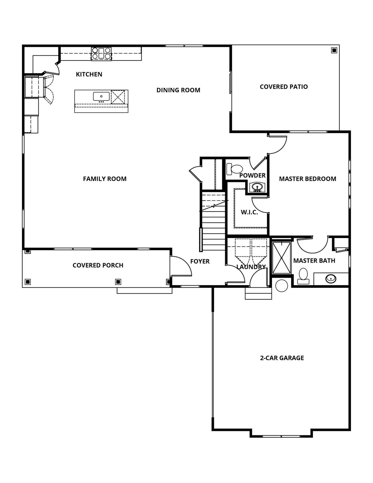
Situated on a wooded cul-de-sac lot at the back of the neighborhood, spacious, open living is what you will find in the Williamsburg floor plan. With a wide array of rooms and spaces, this floor plan is bound to have everything you need! This five-bedroom, three-and-a-half-bath home is truly the home every entertainer dreams of. With one bedroom with en-suite bath on the first floor, it is the perfect home for those needing an in-law suite or separate space for guests. The chef-inspired kitchen is the main focal point of the first floor. This open kitchen connects to the family room and dining room, allowing you to be close to everything. You will find quartz countertops with large island, stainless steel appliances and tiled backsplash. Need more space downstairs to entertain? No problem, walk through the doors off the dining area, and you can extend your gathering to the covered outdoor living area. With so much room, the Williamsburg is one of the most flexible floor plans, with surprises around every corner. Please ask about our builder incentives.
Property Type:
Residential


Map
This property is a listing of LGI Homes NC LLC.
Listings courtesy of Canopy MLS as distributed by MLS GRID.
© 2025 Canopy MLS. All rights reserved.
Claims of Copyright Infringement & Related Issues (17 USC § 512 et seq.)