1013 Millbridge Road
Belmont, NC
$470,000
Details & Amenities
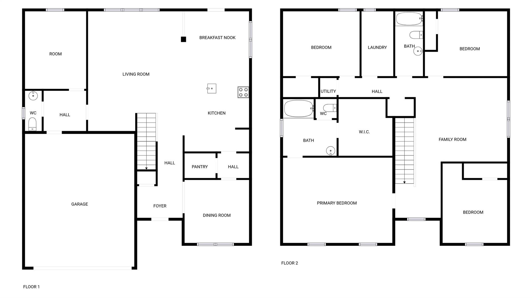
Welcome to this beautiful property that boasts a neutral color paint scheme throughout, creating a serene and calming atmosphere. The kitchen is a chef's dream with a center island for added workspace and an accent backsplash that adds a touch of elegance. The kitchen is a chef's dream with all stainless steel appliances. The primary bedroom is a true retreat with a spacious walk-in closet for all your storage needs. The primary bathroom features double sinks, ensuring plenty of space for your morning routine. Outside, you'll find a fenced-in backyard that offers privacy and a patio perfect for outdoor entertaining. This property is a must-see for those seeking a blend of style and comfort. Included 100-Day Home Warranty with buyer activation
Property Type:
Residential
Map
This property is a listing of Opendoor Brokerage LLC.Listings courtesy of Canopy MLS as distributed by MLS GRID.
© 2026 Canopy MLS. All rights reserved.
Claims of Copyright Infringement & Related Issues (17 USC § 512 et seq.)
