1005 Cane Manor Court
Waxhaw, NC
$2,000,000
Details & Amenities
Welcome to Lot 4 in Cane Manor — Waxhaw’s Newest Gated Community, built by Goodwin Custom Homes
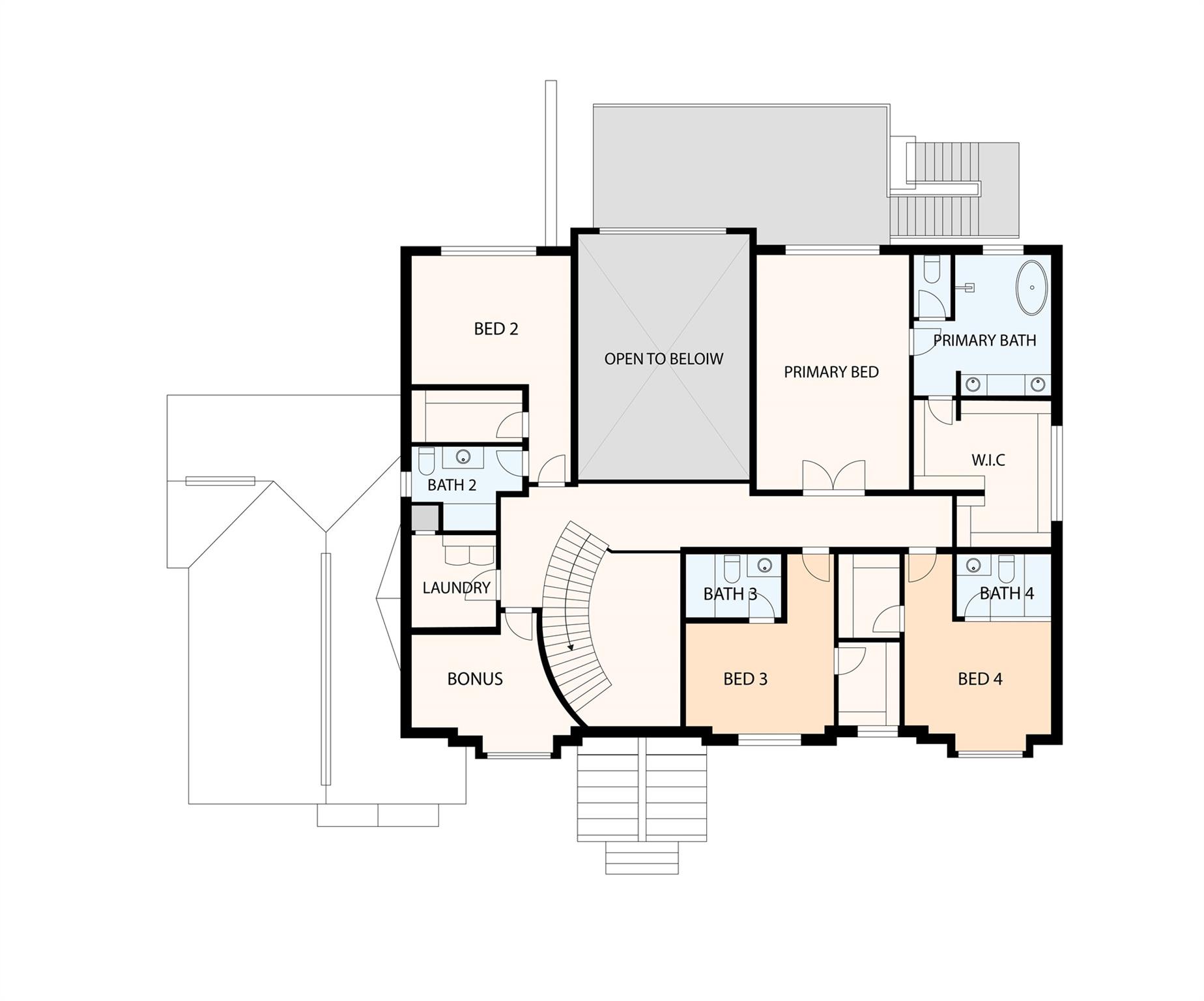
This premium homesite is perfectly suited for a walkout basement home, offering the ideal canvas to bring your vision to life. The proposed plan features an impressive 6-bedroom, 6-bathroom residence spanning nearly 6,000 square feet of exceptional design and craftsmanship.
Not the perfect floor plan for you? No problem — customization is encouraged! Choose from a variety of builder-approved plans or modify this one to fit your lifestyle. Want to add a pool, outdoor kitchen, or expanded entertainment space? We can accommodate that too.
Set within Cane Manor, an exclusive nine-lot gated enclave, each estate-sized homesite offers privacy, wooded surroundings, and elegance on a grand scale.
Experience refined country living just minutes from downtown Waxhaw, top schools, and local conveniences.
Property Type:
Residential
Map
This property is a listing of EXP Realty LLC Ballantyne.Listings courtesy of Canopy MLS as distributed by MLS GRID.
© 2026 Canopy MLS. All rights reserved.
Claims of Copyright Infringement & Related Issues (17 USC § 512 et seq.)
