8016 Sinnet Place
Charlotte, NC
$279,990
Status: Active
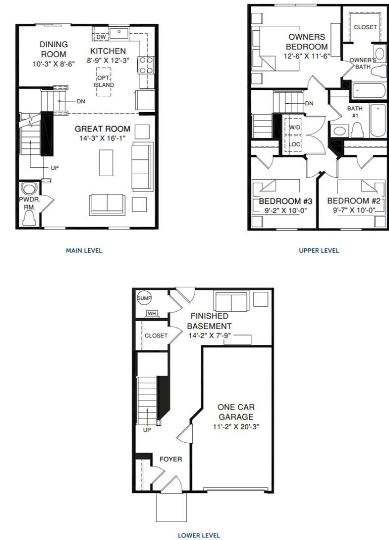
Beds: 3
Full Baths: 2
Half Baths: 1
Sq ft: 1576
Sub Division: Dillon Lakes
Elementary School: Unspecified
Middle School: Unspecified
High School: Unspecified
Year Built: 2026
Acerage: 0.036 Acres
MLS #: 4325707
Status: Active
Facebook Twitter Pinterest Instagram eMail To

Details & Amenities

Last Unit at this price point1 Luxury. Why settle for the middle when you can own the edge? This brand-new, 3-story townhome is an end unit—which means more privacy, more natural light, and your very own private backyard oasis—all for the price of an interior unit. Yes, really. Located just minutes from I-77 and I-85, you're perfectly positioned for quick commutes, weekend getaways, and everything Charlotte has to offer. This modern 3-story townhome feature 3 bedrooms, 2.5 baths, a finished rec room perfect for movie nights, workouts, or your dream home office, plus 1 car garage with extra storage. Your main living area offers an open concept with sun-soaked windows only an end unit can offer and a kitchen, dining room, family room and powder room flowing seamlessly into one another. The kitchen has Granite, a center Island, 36" cabinets and GE SS Appliances including the Refrigerator. The upper level offers a conveniently located laundry room with GE Washer/Dryer included. The lower-level flex room provides the perfect spot for a home office or movie room. Enjoy the outdoors in your backyard with space to grill or entertain on large patio with privacy panels. This quaint community is tucked away from the hustle & bustle of the city, but close enough to embrace all the city has to offer in Camp Northend, University City, and Uptown Charlotte. Whether you're a first-time buyer, a savvy investor, or just ready to upgrade your lifestyle, this townhome delivers unbeatable value in a prime location. Special finance options with our preferred lender. To Be Built. Photos are for illustrative purposes only. Price is based on cash purchase. Primary home or investment opportunity!
Property Type:
Residential


Map
This property is a listing of NVR Homes, Inc./Ryan Homes.
Listings courtesy of Canopy MLS as distributed by MLS GRID.
© 2025 Canopy MLS. All rights reserved.
Claims of Copyright Infringement & Related Issues (17 USC § 512 et seq.)