101 FIRST Street
Lowell, NC
$640,500
Details & Amenities
FOR SALE — 101 E FIRST STREET, LOWELL, NC
A Timeless 1921 Landmark Ready for New Life
Step into a rare piece of Lowell’s history. Originally built in 1921, this former bank building stands proudly at the corner of E First Street—marked with character, craftsmanship, and endless potential. The original bank vault still rests inside, a striking reminder of the city’s early commercial era.
Positioned in the heart of Historic Downtown Lowell, this solid brick structure offers an exciting opportunity for investors, business owners, or developers looking to create something special in a growing, revitalizing community.
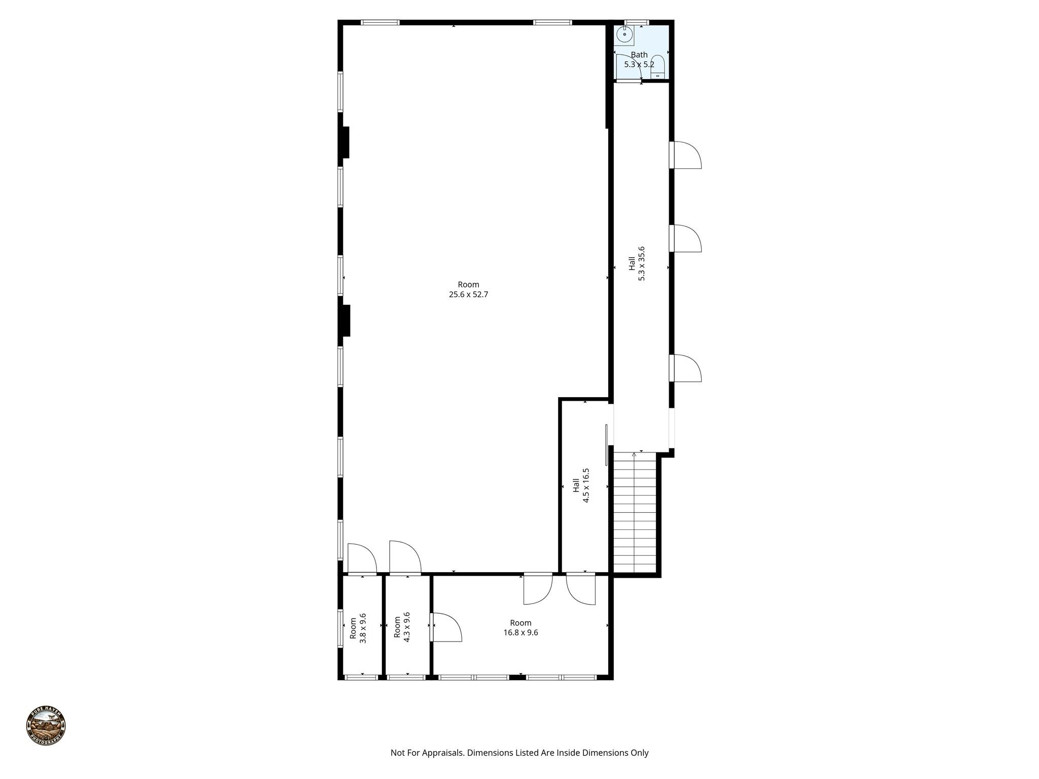
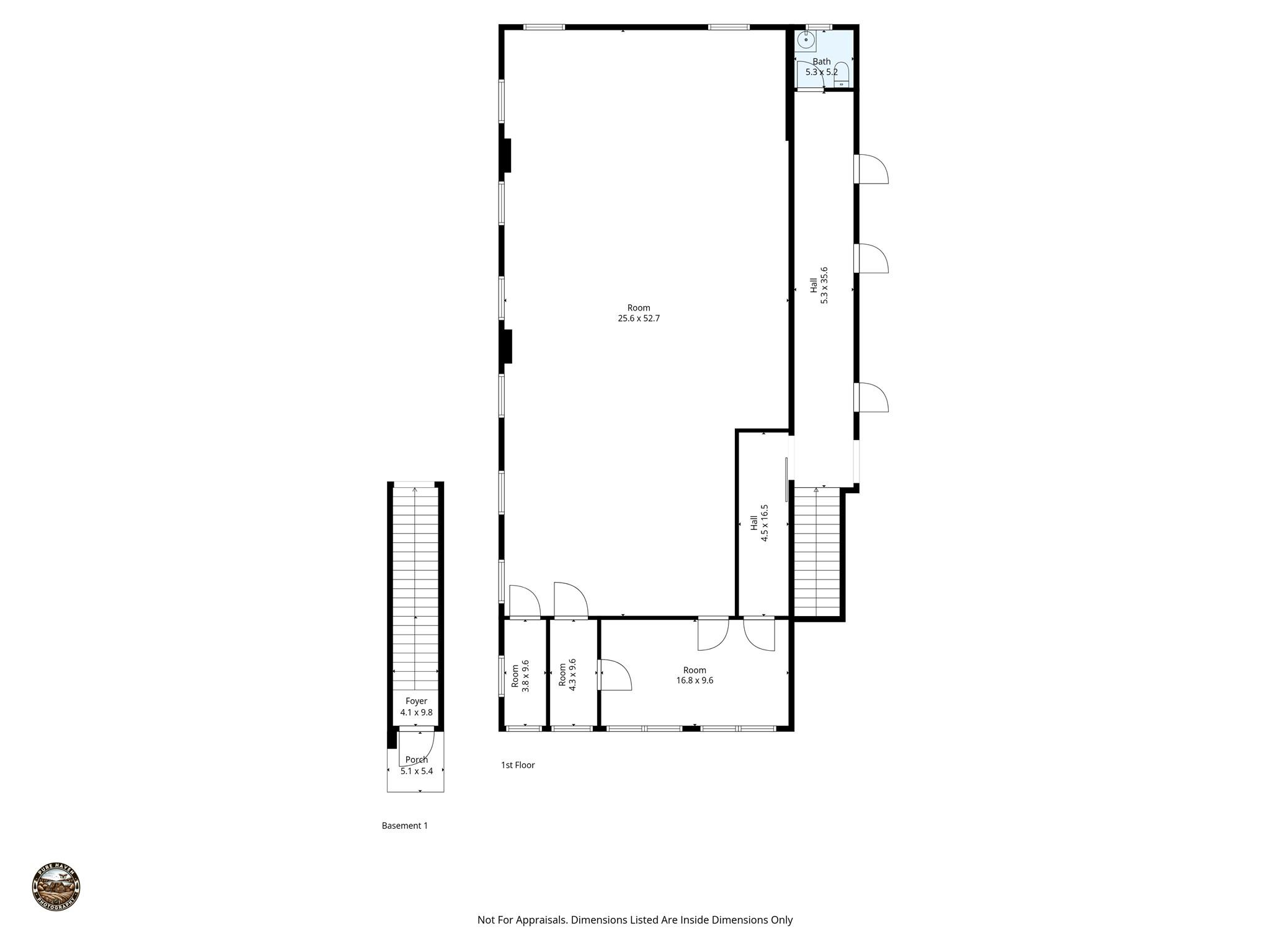
LAYOUT & POTENTIAL
• Up to 3 business spaces possible—ideal for retail, office, boutique, café, studio, salon, or professional services.
• A separate, connecting doorway leads to 100 Main Street, giving the option to keep the spaces unified or operate them independently.
• Upstairs area offers additional square footage—perfect for offices, co-working, creative studios, or potential future residential conversion (buyer to verify).
• Strong street visibility with corner-lot presence—your signage and storefront will shine.
• Walking distance to parks, city hall, local shops, and new development activity.
Lowell is a community rich with mill-town roots, friendly neighbors, and a growing downtown footprint. Revitalization efforts have brought new local businesses, events, and investment interest. With quick access to I-85 and less than 20 minutes to Charlotte, this location blends small-town charm with big-city convenience.
Whether you imagine a modern café tucked behind the old vault, trendy retail along Main Street, or a multi-tenant property… 101 E First Street is a rare canvas in a historic district full of possibility.
Property Type:
Commercial Sale
Map
This property is a listing of Century 21 Town & Country Rlty.Listings courtesy of Canopy MLS as distributed by MLS GRID.
© 2025 Canopy MLS. All rights reserved.
Claims of Copyright Infringement & Related Issues (17 USC § 512 et seq.)
