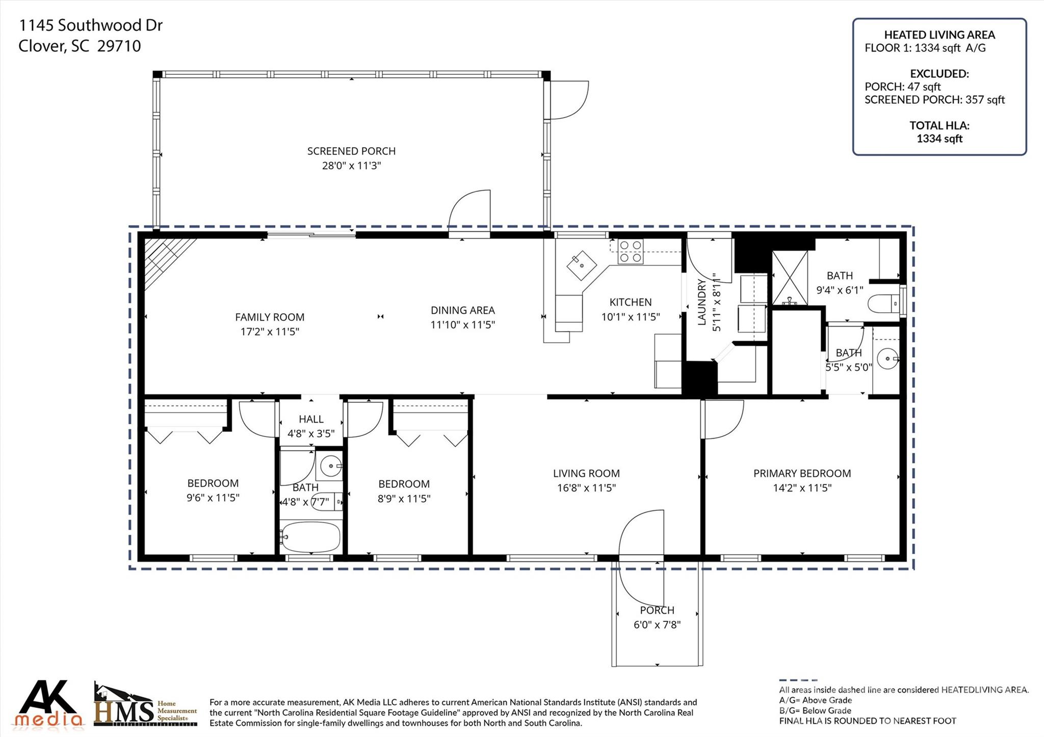
1145 Southwood Drive
Clover, SC
$143,000
Details & Amenities
This "as is" doublewide home in Clover is ready for new buyers. With 3 bedrooms and 2 baths and an open kitchen floor plan, this home has so much potential. It is a split floor plan with a laundry room and pantry, and the screened in the porch/deck area is perfect for quiet evenings outside. You will also find a shed for storage and a ramp that makes accessibility to the home possible from the driveway. This home is zoned for the Clover School District, shopping, quick access to major roads in York County and Lake Wylie.
Property Type:
Residential
Map
This property is a listing of Keller Williams Connected.Listings courtesy of Canopy MLS as distributed by MLS GRID.
© 2026 Canopy MLS. All rights reserved.
Claims of Copyright Infringement & Related Issues (17 USC § 512 et seq.)
