6525 Heath Glen Drive
Mint Hill, NC
$670,000
Details & Amenities
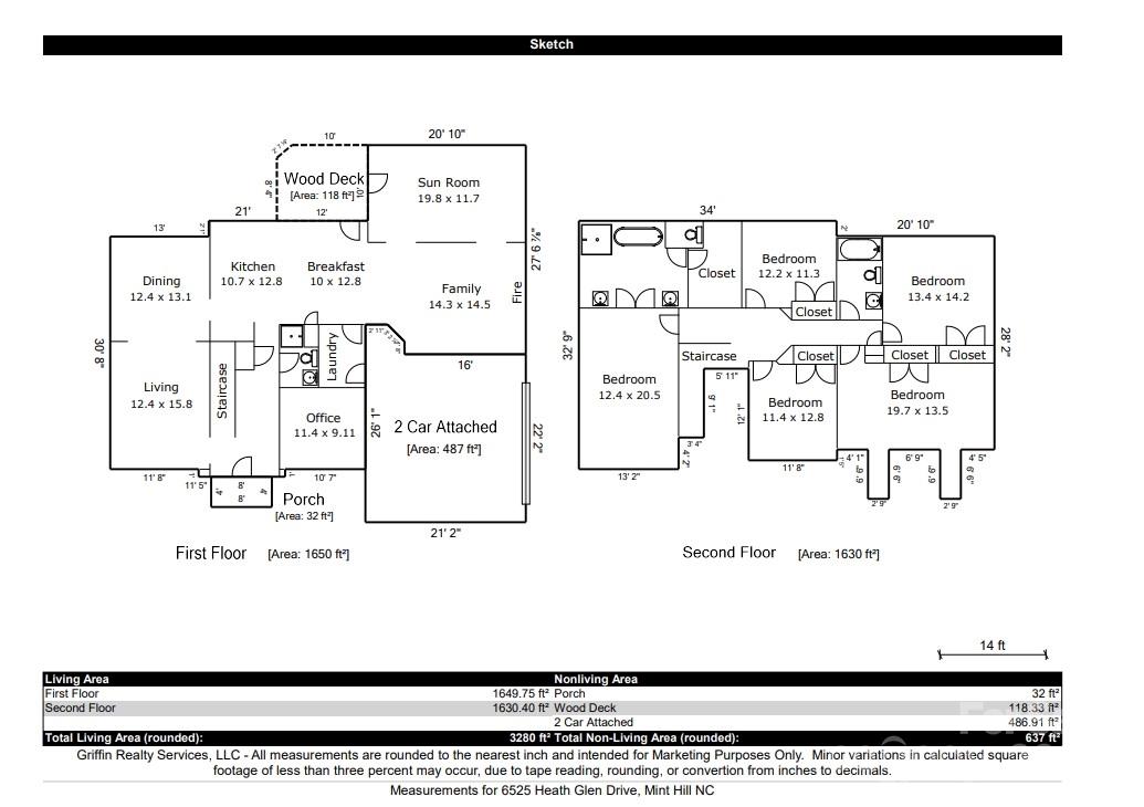
Located in the desirable Heathfield neighborhood, this beautiful two-story home offers timeless charm, flexible living spaces, and a prime Mint Hill location. Set on a large, flat lot, the home features brick on three sides, a two-car garage, and a detached building ideal for storage, a workshop, or hobbies.
The main level includes formal living and dining rooms, a cozy family room with gas log fireplace, and a bright sunroom overlooking the backyard. A flexible first-floor room located next to a full bath is perfect for a home office, guest space, or playroom. Upstairs, you’ll find four spacious bedrooms plus a large bonus room. The roof was replaced in 2019, offering added peace of mind.
Conveniently located close to I-485, Mint Hill shopping, dining, and everyday amenities, this home offers the perfect balance of neighborhood charm and modern convenience.
Property Type:
Residential
Map
This property is a listing of Real Broker, LLC.Listings courtesy of Canopy MLS as distributed by MLS GRID.
© 2025 Canopy MLS. All rights reserved.
Claims of Copyright Infringement & Related Issues (17 USC § 512 et seq.)
