136 Cedar Woods Drive
Mooresville, NC
$1,200,000
Details & Amenities
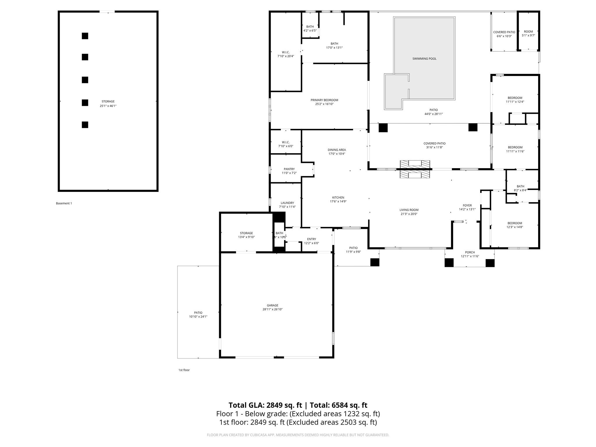
Tucked away on a private corner lot in the heart of Lake Norman, this exceptional modern residence sits on over 1.5 acres with breathtaking lake views and no HOA. Thoughtfully designed for both everyday living and elevated entertaining, the open-concept layout showcases a stunning chef’s kitchen anchored by an oversized marble island, custom cabinetry, a spacious butler’s pantry with breakfast bar, and an integrated wine fridge.
The home is rich with high-end upgrades, including smart sun windows and sliders, an Aerus air scrubber with whole-home humidification system, and a whole-house water filtration canister. A temperature-controlled, encapsulated crawl space provides abundant, clean storage rarely found at this level.
Step outside to your private outdoor retreat featuring a resort-style saltwater pool, travertine decking, outdoor kitchen, and outdoor shower; perfect for entertaining or unwinding year-round. The oversized primary suite offers generous proportions and exceptional storage, creating a true sanctuary.
Additional highlights include a spacious two-car garage with built-in utility storage, expansive living areas flooded with natural light, and seamless indoor-outdoor flow designed to maximize the Lake Norman lifestyle. A rare opportunity to own a private, modern estate combining luxury, functionality, and breathtaking surroundings.
Water Body:
Lake Norman
Property Type:
Residential
Map
This property is a listing of RE/MAX Executive.Listings courtesy of Canopy MLS as distributed by MLS GRID.
© 2026 Canopy MLS. All rights reserved.
Claims of Copyright Infringement & Related Issues (17 USC § 512 et seq.)
