3722 Sally Lane
Charlotte, NC
$318,990
Details & Amenities
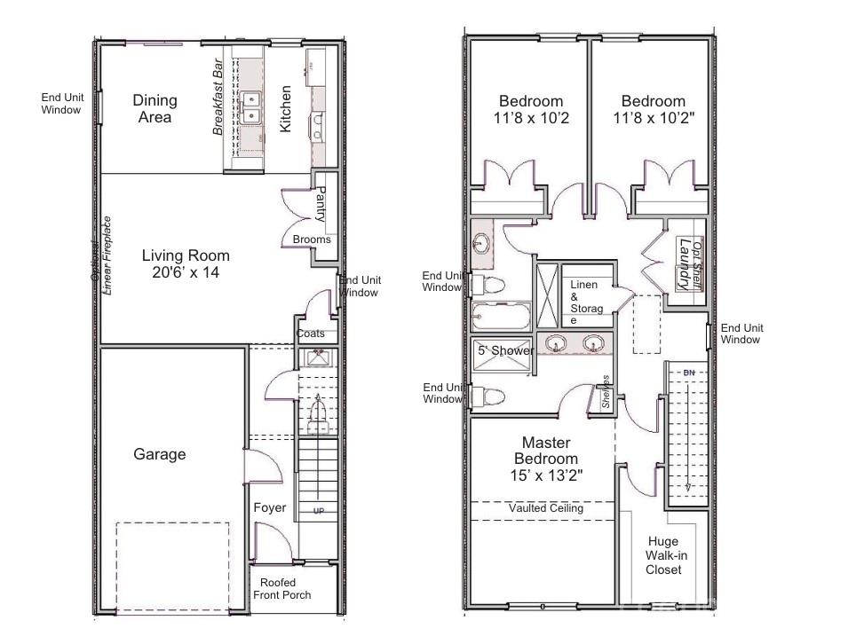
Townhomes with NO HOA dues and Extremely large yards. No restrictions on making your back yard your own private oasis! The builder is offering up to $10,000 to buyers at closing, if a preferred lender is used, making this an unbeatable opportunity. Enjoy stylish modern/craftsman finishes, luxury vinyl plank flooring on the main level, and luxury tile in all baths and the laundry room. This spacious layout features 3 bedrooms in each unit. Bright white and soft gray tones create a fresh, inviting atmosphere. SouthCraft by Empire Homes delivers desirable upgrades at an affordable price. Discover your dream home/investment today! All interior photos are representation photos and help give an idea of the potentials this home and lot can offer. Builder is providing a 16 foot privacy fencing between each unit. Welcome the morning light into your primary bedroom with these east facing properties.
Property Type:
Residential
Map
This property is a listing of EXP Realty LLC Mooresville.Listings courtesy of Canopy MLS as distributed by MLS GRID.
© 2026 Canopy MLS. All rights reserved.
Claims of Copyright Infringement & Related Issues (17 USC § 512 et seq.)
