1730 Burnette Street
Lancaster, SC
$183,850
Details & Amenities
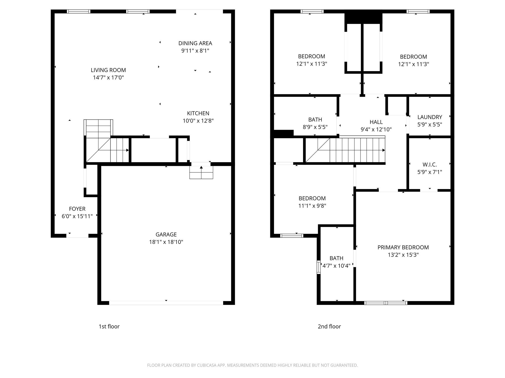
Spacious and inviting, this 4-bedroom, 2.5-bath home sits on a generous 0.71-acre lot, offering plenty of room to stretch your imagination. At the heart of the home is a clean, bright, and highly functional kitchen featuring granite countertops, classic white shaker-style cabinetry, and ample workspace—perfect for cooking, gathering, and creating memories. The well-proportioned bedrooms provide flexibility for family, guests, or a home office, while the 2.5 baths add everyday convenience. Outside, enjoy the privacy and possibilities that come with nearly three-quarters of an acre—ideal for outdoor entertaining, gardening, or future enhancements. A 2-car garage completes the package, offering secure parking and additional storage. This home delivers space, style, and timeless appeal, making it a must-see opportunity.
Property Type:
Residential
Map
This property is a listing of Showcase Realty LLC.Listings courtesy of Canopy MLS as distributed by MLS GRID.
© 2026 Canopy MLS. All rights reserved.
Claims of Copyright Infringement & Related Issues (17 USC § 512 et seq.)
