5432 Highway 218 Highway
Monroe, NC
$900,000
Details & Amenities
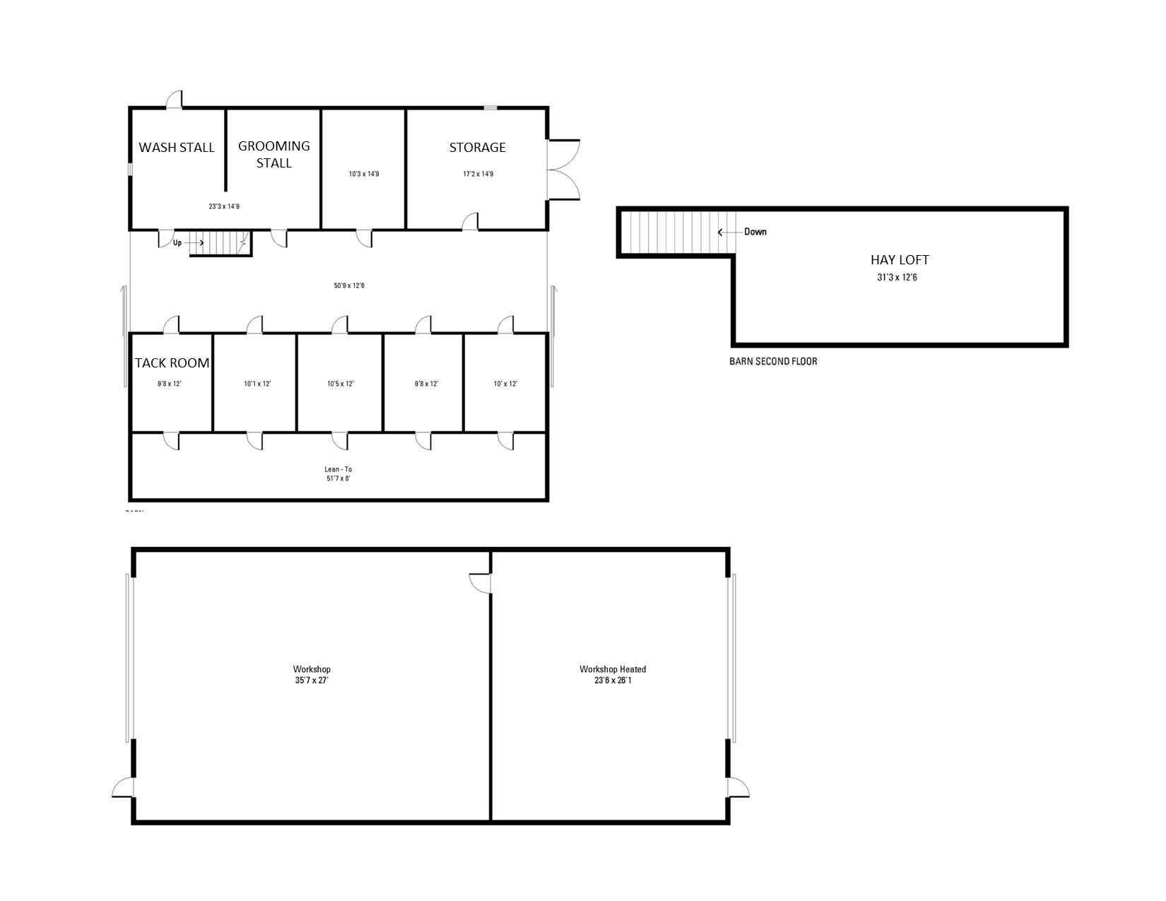
Honey Trout Farm offers an ideal setup for buyers with multiple interests. Located in the Piedmont School District at the end of a long paved driveway, this property features a well-established horse farm surrounded by similar acreage properties. Equestrian amenities include a 5-stall barn with stall mats, fans, fly mist system, walk-up hay loft, wash and tack areas, and four stalls with Dutch doors opening to the dry lot/riding area. Horses also have access to two fenced pastures with 3-board, vinyl, and/or electric fencing, one with shade trees.
The grounds are thoughtfully landscaped with established flower beds, hydrangeas, river birch trees, and a pond that adds both visual interest and a natural outdoor gathering point. A separate shop building includes a climate-controlled, finished lounge or playroom, providing flexible space for hobbies, vehicles, recreational equipment, or workshop use.
The full brick home offers expansive windows overlooking the landscaped grounds, pond, and farm areas. The split/open floor plan features a primary suite with sitting area and fireplace on one side of the home, along with an additional bedroom or office, while guest suites are located on the opposite side for privacy. Interior details include refinished hardwood floors, chair rail molding, crown molding, and columns that maintain an open yet defined layout.
Updates completed between 2015 and 2025 include refinished hardwood floors, kitchen granite countertops, appliances, roof, paver patio, HVAC systems, sump pump, lighting fixtures, water softener, and more. Convenient location with a direct route to I-485 and easy access to Monroe and Mint Hill.
Property Type:
Residential
Map
This property is a listing of Premier Sotheby's International Realty.Listings courtesy of Canopy MLS as distributed by MLS GRID.
© 2026 Canopy MLS. All rights reserved.
Claims of Copyright Infringement & Related Issues (17 USC § 512 et seq.)
