421 Ocala Street
Rock Hill, SC
$571,400
Details & Amenities
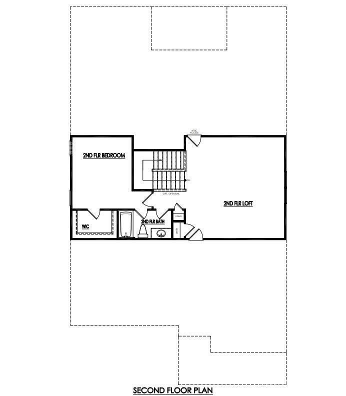
Welcome to new construction close to Catawba River! This 1.5-story Harrison plan has 4 bedrooms, 3 full baths, and more than 2,600 square feet of living space. The primary suite is on the main and features a tray ceiling in the bedroom and a luxury bath that has a tub with tile surround and a tiled shower with semi-frameless door. Two more secondary bedrooms are also found on the main along with a full bath. The open family room, kitchen, and breakfast area lead to a covered porch. The kitchen features white cabinetry, quartz counters, and stainless appliances, including a gas cooktop and wall oven & microwave. The main floor is completed with a half bath, laundry room, and mud room with built-in drop zone. The upper floor has a large loft, bedroom with walk-in closet, and a full bath with a tub/shower combo. Other extras include a foyer with tray ceiling and upgraded trim, stairs with composite stair treads & metal balusters, and Enhanced Vinyl Plank flooring. Visit today!
Property Type:
Residential
Map
This property is a listing of Eastwood Homes.Listings courtesy of Canopy MLS as distributed by MLS GRID.
© 2026 Canopy MLS. All rights reserved.
Claims of Copyright Infringement & Related Issues (17 USC § 512 et seq.)
