6435 Morven Lane
Charlotte, NC
$1,095,000
Status: Pending
Beds: 4
Full Baths: 3
Half Baths: 1
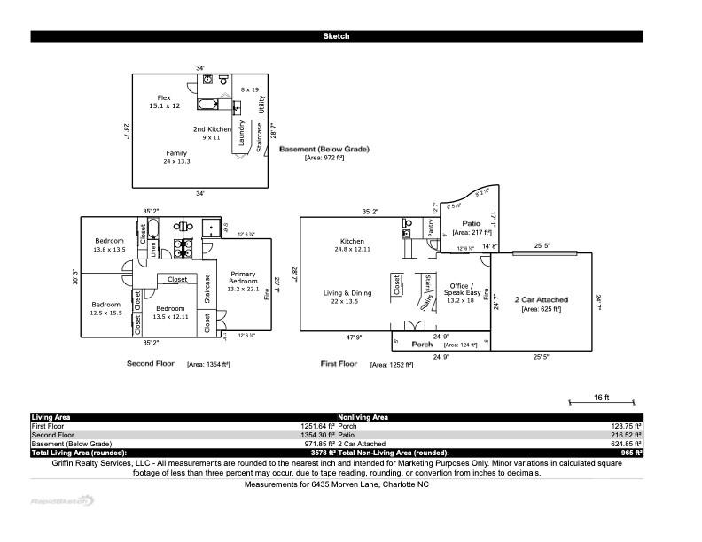
Sq ft: 3578
Sub Division: Lansdowne
Elementary School: Lansdowne
Middle School: McClintock
High School: East Mecklenburg
Year Built: 1966
Acerage: 0.47 Acres
MLS #: 4355200
Status: Pending
Facebook Twitter Pinterest Instagram eMail To

Details & Amenities

Located in the heart of the highly sought-after Lansdowne community, this beautifully updated residence blends timeless architecture with elevated, modern design. Thoughtfully reimagined for today’s lifestyle, the home offers gracious living spaces, extensive system upgrades, and refined finishes throughout. At the center of the home, the expansive chef’s kitchen has been expertly opened to the main living area, creating a light-filled setting ideal for both relaxed daily living and sophisticated entertaining. Custom cabinetry is complemented by sleek quartz countertops and designer floating shelves that add both style and functionality. Thermador appliances — including a gas range, refrigerator, and freezer — elevates the space, delivering exceptional performance with a polished, luxury aesthetic. Extensive mechanical improvements provide exceptional peace of mind, including a newer roof (2023), updated HVAC system (2024), improved plumbing with a new main line and sewer clean-out, a whole-home generator, and gutter guards. Interior and exterior enhancements continue throughout with beautifully refinished hardwood floors, fresh interior and exterior paint, and renovated primary and secondary bathrooms that reflect a clean, modern style. The professionally enhanced DryPro basement features carbon fiber reinforced structural supports and has been expanded to include a full bath and secondary kitchen, offering remarkable flexibility for guests, extended living, or recreation. Additional highlights include a private driveway gate, new gas logs in the office, and a number of valuable inclusions such as the garage freezer, additional refrigerator, primary closet organization system, and washer and dryer. With its thoughtful renovations, premium upgrades, and prime location in one of Charlotte’s most established neighborhoods, this exceptional home offers a rare combination of character, comfort, and enduring value.
Property Type:
Residential


Map
This property is a listing of COMPASS.
Listings courtesy of Canopy MLS as distributed by MLS GRID.
© 2026 Canopy MLS. All rights reserved.
Claims of Copyright Infringement & Related Issues (17 USC § 512 et seq.)