22 Honeysuckle Lane
Lake Wylie, SC
$785,000
Status: Active
Beds: 4
Full Baths: 3
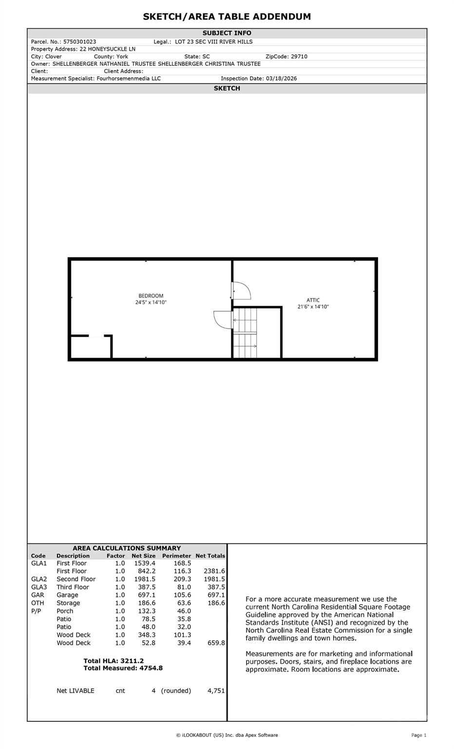
Sq ft: 3212
Sub Division: River Hills
Elementary School: Crowders Creek
Middle School: Oakridge
High School: Clover
Year Built: 1972
Acerage: 0.38 Acres
MLS #: 4357913
Status: Active
Facebook Twitter Pinterest Instagram eMail To

Details & Amenities

Tucked on a quiet cul-de-sac with a golf course backdrop, this River Hills home offers both privacy and space in one of the area's most sought-after gated communities. Inside, more than 3,200 square feet unfolds into multiple living areas, featuring a refreshed primary suite and a versatile lower level ideal for guests, multi-generational living, or a private retreat. Currently configured with 4 bedrooms plus a bonus room that can easily serve as a 5th bedroom, the layout blends character with functionality and adapts to your lifestyle — whether you're working from home, hosting visitors, or simply needing room to spread out. All of this is set within River Hills, known for its tree-lined streets, established charm, and access to golf, lake living, and outdoor amenities.
Property Type:
Residential


Map
This property is a listing of Keller Williams Connected.
Listings courtesy of Canopy MLS as distributed by MLS GRID.
© 2026 Canopy MLS. All rights reserved.
Claims of Copyright Infringement & Related Issues (17 USC § 512 et seq.)