2118 Killian Creek Drive
Denver, NC
$519,900
Status: Active
Beds: 5
Full Baths: 3
Half Baths: 1
Sq ft: 3094
Sub Division: Killian Creek
Elementary School: St. James
Middle School: East Lincoln
High School: East Lincoln
Year Built: 2020
Acerage: 0.25 Acres
MLS #: 4358493
Status: Active
Facebook Twitter Pinterest Instagram eMail To

Details & Amenities

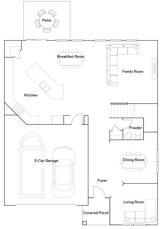
Welcome home to Killian Creek! Large, rocking chair, covered front porch overlooks the community park area - Fully fenced back yard - Main floor office with French doors - Huge family room with gas log fireplace - Large kitchen that would impress even the most discriminating Epicurean - White cabinets, quartz counters, gas range and an abundance of counter/ cabinet space - Huge island and eat in Breakfast area - Formal dining room/ flex space - LVP floors throughout main level - Oversize Primary suite with large walk-in closet - Primary bath with walk in shower, soaking tub and raised height dual basin vanity - Generous secondary bedrooms and closets - Loft - Attached oversize garage - Large patio backs to community natural area for additional privacy - Home is perfectly situation in the community with no neighbors directly in front or behind you - Home is in wonderful condition and has been well maintained - Community backs up to Verdict Ridge golf club which is semi-private and offers extremely affordable membership plans - Minutes to all your day to day needs and Lake Norman access - Beautifully landscaped with up lights - This is one of Lennar's most popular Forsyth floorplan - Call anytime for details or a private tour
Property Type:
Residential


Map
This property is a listing of Coldwell Banker Realty.
Listings courtesy of Canopy MLS as distributed by MLS GRID.
© 2026 Canopy MLS. All rights reserved.
Claims of Copyright Infringement & Related Issues (17 USC § 512 et seq.)