1735 Windyrush Lane
Gastonia, NC
$299,900
Details & Amenities
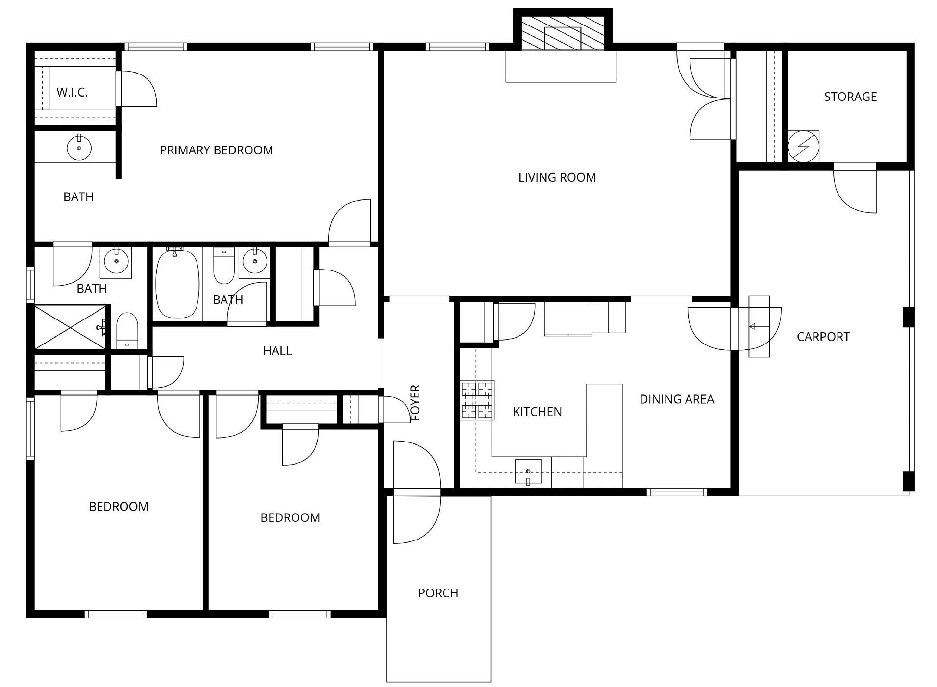
Freshly updated and move-in ready, this charming brick ranch offers a functional layout that makes it a great fit for a first-time buyer, downsizer, or investor. Recent improvements include full interior repaint, new carpet in the bedrooms, and several new ceiling fans and light fixtures. The home also features an updated kitchen with stainless steel appliances, granite countertops, tile backsplash, updated LVP flooring, a spacious great room with fireplace and built-ins, and a large primary bedroom with walk-in closet. Outside, the fenced back yard and carport add everyday convenience. Located in the Kingswood South neighborhood, this home offers easy access to Gastonia, Belmont, shopping, and I-85 for a convenient commute into Charlotte.
Property Type:
Residential
Map
This property is a listing of Verge LLC.Listings courtesy of Canopy MLS as distributed by MLS GRID.
© 2026 Canopy MLS. All rights reserved.
Claims of Copyright Infringement & Related Issues (17 USC § 512 et seq.)
